🏠 Apartamento com 2 quartos com terraço envolvente em Binghatti Titania
A Baytique Real Estate tem o prazer de apresentar esta espetacular residência de canto com 2 quartos em Binghatti Titania, localizada na comunidade em rápida evolução de Majan, Dubai. Esta propriedade é um achado raro, que se distingue pelo seu enorme terraço em forma de L que oferece um estilo de vida panorâmico ao ar livre, combinando interiores espaçosos com o luxo de um jardim privado no céu.
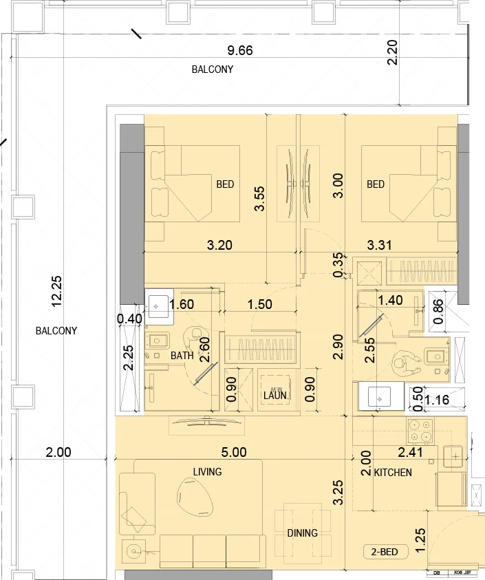
Layout e caraterísticas exclusivas
Esta unidade de canto oferece um layout altamente funcional que maximiza a luz natural e a privacidade.
-
O terraço “Sky Garden”: A caraterística que o define é a colossal varanda envolvente. Com 12,25 m de um lado e 9,66 m do outro, este espaço exterior em forma de L envolve todo o apartamento, proporcionando um amplo espaço para várias zonas de estar, uma área de jogos ou um jardim.
-
Sala de estar e jantar: A luminosa sala de estar mede 5,00 m de largura, oferecendo muito espaço para reuniões familiares. Flui naturalmente para uma zona de refeições dedicada (3,25 m) e abre diretamente para o terraço para uma vida interior e exterior perfeita.
-
Cozinha e utilidades: Uma cozinha semi-fechada (2,41m x 2,00m) foi concebida de forma eficiente para manter os aromas da cozinha contidos. O layout também inclui uma lavandaria dedicada (0,90m x 0,90m) e um W.C. para hóspedes, acrescentando conveniência significativa.
-
Suites principais: Ambos os quartos são verdadeiras suites com as suas próprias casas de banho privadas. O quarto principal (3,20 m de largura) e o segundo quarto (3,31 m de largura) têm roupeiros embutidos e vista direta para a janela.
-
Três casas de banho: Com duas casas de banho privativas e um lavabo para hóspedes, a privacidade é garantida tanto para os residentes como para os visitantes.
🎯 Ideal para:
-
Famílias:
-
Espaço e segurança: O enorme terraço serve de parque infantil seguro e privado para as crianças.
-
Design funcional: A separação entre os quartos de dormir e a sala de estar, combinada com 2 casas de banho, garante uma rotina matinal harmoniosa para as famílias.
-
Comunidade: Majan é uma comunidade tranquila e sem trânsito, perto das melhores escolas e serviços de saúde.
-
-
Investidores:
-
Ativo de prémio: As unidades de esquina com terraços alargados são “activos-troféu” únicos que mantêm melhor o seu valor e obtêm prémios de arrendamento mais elevados do que as unidades normais.
-
Elevada procura: A proximidade do Dubai Silicon Oasis e do DIFC (via E311) assegura uma procura constante por parte dos profissionais.
-
-
Compradores de estilos de vida:
-
Animadores: Ideal para quem gosta de receber; a varanda envolvente é perfeita para churrascos ou para relaxar ao pôr do sol.
-
🏙️ Localização e infra-estruturas
O Binghatti Titania coloca-o no coração de Majan, diretamente acessível a partir da Sheikh Mohammed Bin Zayed Road. Os residentes desfrutam de um bairro em desenvolvimento com centros comerciais locais, mercearias e parques. Está a poucos minutos do IMG Worlds of Adventure, da Global Village e da vegetação luxuriante de Al Barari, oferecendo um estilo de vida de resort com a conveniência da cidade.













