✨ Elegante 4-Zimmer-Maisonettewohnung + Zimmer für Hausangestellte in Sierra
Wir präsentieren Ihnen eine seltene und geräumige 4-Zimmer-Maisonette-Wohnung mit einem Zimmer für Hausangestellte in der modernen Wohnanlage Sierra. Diese Residenz verbindet nahtlos Komfort, Privatsphäre und beeindruckendes Wohnen im Freien und ist somit ideal für Familien, Investoren und kurzfristige Vermietungsmöglichkeiten.
📐 Layout und Hauptmerkmale
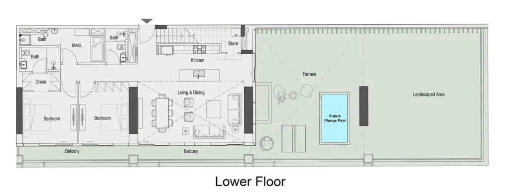
Untergeschoss
-
Heller, offener Wohn- und Essbereich mit Zugang zu einem Balkon, der sich über die gesamte Breite erstreckt.
-
Moderne Küche mit angrenzendem Vorratsraum
-
Zwei Schlafzimmer, jedes mit eigenem Bad und eigenem Ankleidebereich
-
Zimmer für Hausangestellte mit eigenem Bad
-
Direkter Zugang zu einer großzügigen privaten Terrasse mit einer begrünten Zone und einem ausgewiesenen Bereich für ein zukünftiges Tauchbecken
Obergeschoss
-
Zusätzlicher Wohnbereich für die Familie zum Entspannen oder als Arbeitsbereich
-
Zwei weitere Schlafzimmer, beide mit eigenem Bad und Ankleidebereich
-
Durchgehender Balkon über die gesamte Länge des Obergeschosses
-
Offener Blick auf die darunter liegende Terrasse, wodurch die natürliche Beleuchtung und die Geräumigkeit verstärkt werden.
Vorteile des Layouts
-
Echte 4-Zimmer-Konfiguration mit Zimmern in voller Größe
-
Alle Schlafzimmer verfügen über ein eigenes Bad und einen begehbaren Kleiderschrank.
-
Hervorragende Trennung zwischen privaten und sozialen Bereichen
-
Viel natürliches Licht dank großer Fenster und zweistufiger Außenbereiche
-
Große Terrasse, ideal für Unterhaltung, Familienfeiern oder private Freizeitaktivitäten
👨👩👧 Perfekt für Familien
-
Vier geräumige Schlafzimmer bieten Komfort und Privatsphäre.
-
Ruhige Duplex-Konfiguration, ideal für Haushalte mit mehreren Mitgliedern
-
Außenterrasse, ideal für Kinder und Familienaktivitäten
-
Schulen, Parks, Gemeindezentren und sichere Fußgängerzonen in der Nähe
-
Durchdachte Zoneneinteilung sorgt für ein friedliches Leben
🌴 Ideal für Touristen und Kurzzeitmieten
-
Äußerst attraktives Layout für Premium-Urlaubsaufenthalte
-
Außergewöhnlicher Terrassenbereich – ein großer Anziehungspunkt für Mieter
-
Bequemer Zugang zu Cafés, Supermärkten, Promenaden und Stränden
-
Hohes Belegungspotenzial in touristisch geprägten Gebieten
💼 Hervorragend für Investoren geeignet
-
Duplex-Wohnungen mit Terrasse sind sehr gefragt, das Angebot ist jedoch begrenzt.
-
Hohe Mietrenditen dank familienfreundlichem 4-Zimmer-Format
-
Die Preisentwicklung begünstigt großzügige Grundrisse mit Außenbereich.
-
Starke kurzfristige und langfristige Mietliquidität
🏙 Infrastruktur in der Nähe
-
Einzelhandelsgeschäfte, Supermärkte, Restaurants, Gesundheitseinrichtungen
-
Zugang zu öffentlichen Verkehrsmitteln und Fußgängerwegen
-
Nähe zu Stränden, Uferpromenade und Freizeitgebieten













