🏠 Urban Sanctuary : Geräumige 2-Zimmerwohnung mit Panoramabalkon in Olivia Gardens
Entdecken Sie die perfekte Mischung aus moderner Eleganz und funktionellem Design in dieser atemberaubenden 2-Schlafzimmer-Wohnung in Olivia Gardens Residence. Diese Wohnung ist ein Meisterwerk der Raumplanung und bietet ein harmonisches Wohnumfeld in einer der ruhigsten Wohngegenden Dubais. Mit großen Fenstern und einem weitläufigen, umlaufenden Balkon ist die Wohnung von natürlichem Licht durchflutet und bietet eine helle und luftige Atmosphäre, die die Essenz des zeitgenössischen Luxus in den VAE einfängt.
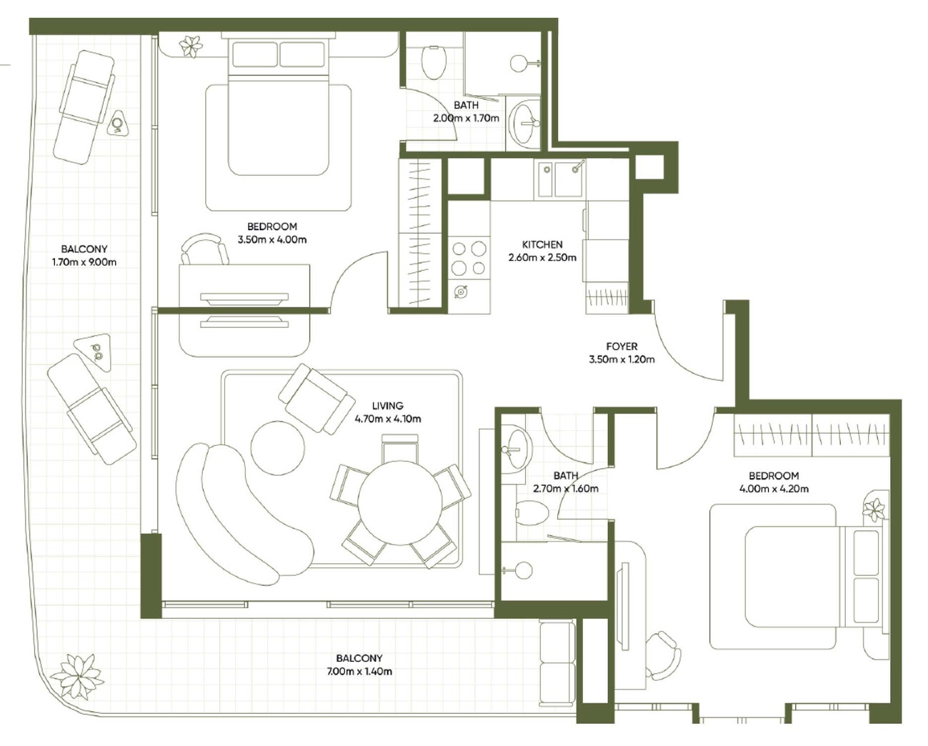
📐 Durchdachtes Layout & wesentliche Vorteile
Der Grundriss wurde sorgfältig ausgearbeitet, um ein Maximum an Privatsphäre und Komfort für alle Bewohner zu gewährleisten:
-
Ausgedehnter Wohn- und Essbereich (4,70 m x 4,10 m): Ein großer zentraler Raum, der als Herzstück des Hauses dient und sich perfekt für Familientreffen und Unterhaltungen eignet.
-
Zwei private Suiten: Das Hauptschlafzimmer (3,50m x 4,00m) verfügt über ein eigenes Bad (2,00m x 1,70m), während das zweite Schlafzimmer (4,00m x 4,20m) großzügig bemessen ist und an das zweite Bad (2,70m x 1,60m) angrenzt.
-
Küche des Chefs (2,60m x 2,50m): Ein moderner, effizienter Küchenraum, der für nahtlose kulinarische Erlebnisse konzipiert ist.
-
Atemberaubende L-förmigen Balkon: Das Kronjuwel dieser Einheit ist der riesige, umlaufende Außenbereich mit Abschnitten von 1,70 m x 9,00 m und 7,00 m x 1,40 m, der mehrere Zonen zum Faulenzen im Freien und einen Panoramablick auf die Stadt bietet.
-
Funktionaler Eingang: Ein einladendes Foyer (3,50m x 1,20m) bietet einen klaren Übergang in den privaten Wohnbereich.
🎯 Eine strategische Entscheidung für jeden Lebensstil
-
Für Familien: Die isolierten Schlaftrakte bieten die für ein modernes Familienleben notwendige Ruhe und Privatsphäre. Olivia Gardens liegt in einer Gemeinde, die für ihre Sicherheit, üppigen grünen Parks und die Nähe zu angesehenen internationalen Schulen bekannt ist.
-
Für Investoren: 2-Schlafzimmer-Wohnungen mit einem so großen Außenbereich sind auf dem Markt in Dubai sehr gefragt. Diese Immobilie bietet aufgrund ihrer einzigartigen architektonischen Merkmale und der begehrten Lage ein hohes Potenzial für Kapitalzuwachs und hohe Mietrenditen.
-
Für Touristen: Der große Balkon und die stilvolle Einrichtung machen diese Wohnung zu einem idealen “Ferienhaus”. Die Nähe zu lokalen Cafés, Einkaufszentren und wichtigen Verkehrsverbindungen sorgt für eine hohe Auslastung das ganze Jahr über.
📍 Erstklassige Infrastruktur und Lage
Olivia Gardens Residence bietet den Bewohnern mehr als nur ein Zuhause, es bietet einen umfassenden Lebensstil. Der Komplex ist von einer Weltklasse-Infrastruktur umgeben, darunter:
-
Freizeit & Einkaufen: Eine Vielzahl von Einzelhandelsgeschäften, Gourmet-Supermärkten und trendigen Cafés sind zu Fuß zu erreichen.
-
Grünflächen: Unmittelbarer Zugang zu wunderschön angelegten Gärten und Joggingpfaden.
-
Konnektivität: Durch die strategische Lage sind die wichtigsten Geschäftsviertel Dubais und die Sehenswürdigkeiten an der Küste schnell und einfach zu erreichen.













