🏠 Exquisites Eckapartment mit 2 Schlafzimmern und majestätischer Aussicht im Mon Reve
Präsentiert von Baytique, handelt es sich hierbei um eine wirklich außergewöhnliche 2-Zimmer-Eckwohnung im exklusiven Komplex ‘Mon Reve’, dessen Name übersetzt “Mein Traum” bedeutet. Diese Residenz wurde entworfen, um dieses Versprechen zu erfüllen, und bietet einen großzügigen, fließenden Grundriss mit umlaufenden Balkonen und atemberaubendem Panoramablick. Sie stellt eine seltene Gelegenheit dar, ein Zuhause zu erwerben, das architektonische Pracht mit intimem Komfort verbindet und sich perfekt für luxuriöses Wohnen oder als erstklassige Investition eignet.
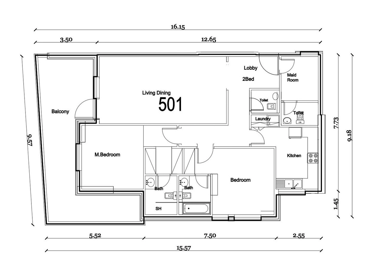
📐 Großzügiges und fließendes Layout mit Panorama-Charme
Diese Wohnung ist meisterhaft gestaltet, um Platz, Licht und Aussicht optimal zu nutzen:
-
Großzügiger offener Wohn- und Essbereich: Das Herzstück des Hauses bildet ein großartiger, offener Wohn- und Essbereich, der nahtlos ineinander übergeht und einen perfekten Raum sowohl für großzügige Unterhaltung als auch für das tägliche Familienleben schafft.
-
Zwei private Schlafzimmersuiten: Die Wohnung verfügt über ein geräumiges Hauptschlafzimmer und ein zweites gut ausgestattetes Schlafzimmer, die beide Privatsphäre und Komfort bieten. Die Ecklage verstärkt das Gefühl von Raum und Licht.
-
Das charakteristische Merkmal: Rundumlaufende Panorama-Balkone: Der Grundriss zeigt einen großzügigen Zugang zum Balkon, was auf rundumlaufende oder doppelseitige Balkone hindeutet. Dieses Design bietet einen unvergleichlichen Außenwohnbereich, von dem aus Sie aus verschiedenen Blickwinkeln einen atemberaubenden Blick auf die Stadt oder Sehenswürdigkeiten genießen können.
-
Hochwertige Lifestyle-Ausstattung: Der Grundriss umfasst eine separate Küche, einen Waschraum und einen Eingangsbereich und sorgt so für einen komfortablen und eleganten Lebensstil, der der Pracht der Wohnung entspricht.
🎯 Maßgeschneidert für anspruchsvolle Eigentümer und Elite-Investoren
👨👩👧👦 Ideal für Familien und Entertainer
Der offene und dennoch klar definierte Grundriss ist ideal für Familien, die sowohl Gemeinschaftsräume als auch private Rückzugsorte schätzen. Die Eckwohnung sorgt für zusätzliche Ruhe und Privatsphäre, während die großzügigen Balkone einen sicheren, offenen Erweiterungsraum für Kinder und einen spektakulären Ort für Gäste bieten – und das alles in einer sicheren, hochwertigen Wohnanlage.
✈️ Ein Flaggschiff unter den Luxusmietobjekten
Für den High-End-Tourismus- und Executive-Mietmarkt ist diese Eckwohnung mit Panoramablick eine Klasse für sich. Sie wird anspruchsvolle Touristen, Führungskräfte aus der Wirtschaft und Expat-Familien anziehen, die ein außergewöhnliches Wohnerlebnis suchen, und damit die höchsten Mietpreise erzielen und eine exklusive, hochwertige Nachfrage sicherstellen.
📈 Eine bahnbrechende Investition mit außergewöhnlichem Aufwärtspotenzial
Eckwohnungen mit Panoramablick sind in jedem Luxusbauprojekt besonders begehrt. Diese 2-Zimmer-Wohnung in ‘Mon Reve’ gilt als Prestigeobjekt. Ihre einzigartigen Merkmale garantieren hohe Mieteinnahmen, eine überdurchschnittliche Wertsteigerung aufgrund ihrer unvergleichlichen Aussicht und einen langfristigen Wert als markantes Gebäude.
📍 Ein Leben voller unvergleichlichem Prestige und Komfort
‘Mon Reve’ wurde für diejenigen entworfen, die das Beste suchen. Hier zu wohnen bedeutet, erstklassigen Concierge-Service, hochwertige Ausstattung und unmittelbaren Zugang zu exklusiven Einkaufsmöglichkeiten, Gourmetrestaurants und kulturellen Sehenswürdigkeiten zu genießen. Der Komplex liegt strategisch günstig und bietet eine nahtlose Anbindung an wichtige Geschäftsviertel und Freizeitattraktionen. Als Eckwohnung in einer der oberen Etagen (5. Etage) wurde dieses Apartment speziell dafür konzipiert, die ikonische Aussicht zu maximieren und den Innenraum mit natürlichem Licht zu durchfluten.













