🏡 Geräumige 2-Schlafzimmer-Wohnung in Binghatti Moonlight
Baytique freut sich, diese meisterhaft gestaltete 2-Schlafzimmer-Wohnung in Binghatti Moonlight zu präsentieren, einem architektonischen Juwel im Herzen von Al Jaddaf, Dubai. Diese Residenz bietet eine perfekte Harmonie aus der charakteristischen Ästhetik von Binghatti und funktionalem Familienleben in einem Viertel, das den Charme des alten Dubai perfekt mit dem Luxus der Skyline von Downtown verbindet.
📐 Anspruchsvolle Gestaltung und moderner Komfort
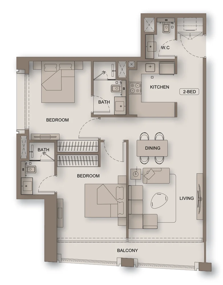
Diese 2-Schlafzimmer-Einheit ist auf Privatsphäre und sozialen Austausch ausgelegt und verfügt über einen Grundriss, der die aktiven Wohnbereiche von den ruhigen Schlafbereichen trennt.
-
Wohnen & Unterhalten: Die Wohnung verfügt über einen hellen, offen gestalteten Wohnbereich und einen eigenen Essbereich, der viel Platz für Familientreffen bietet.
-
Zwei En-suite-Schlafzimmer: Ein herausragendes Merkmal dieses Hauses ist, dass beide Schlafzimmer als private Suiten konzipiert sind, die jeweils mit einem eigenen, voll ausgestatteten Badezimmer ausgestattet sind. Das Hauptschlafzimmer verfügt außerdem über einen großen begehbaren Kleiderschrank für maximalen Stauraum.
-
Konnektivität im Freien: Ein langer, durchgehender Balkon erstreckt sich über die Breite des Wohnzimmers und eines der Schlafzimmer und bietet einen idealen Rückzugsort im Freien für den Morgenkaffee oder die abendliche Entspannung.
-
Kochfertige Küche: Die Wohnung verfügt über eine große U-förmige Küche mit reichlich Arbeitsfläche und einem Platz für eine Waschmaschine (W.M.), die bequem in der Nähe des Eingangs untergebracht ist.
-
Komfort für Gäste: Zusätzlich zu den privaten Badezimmern befindet sich ein separates Gäste-WC in der Nähe des Foyers, so dass die Privatsphäre der Schlafzimmer nicht beeinträchtigt wird.
🎯 Eine ideale Investition und Heimat für:
-
Familien: Die “Dual-Master”-Einrichtung bietet eine außergewöhnliche Privatsphäre für Eltern und Kinder gleichermaßen. Al Jaddaf ist eine friedliche Wohngemeinde, die für ihre Sicherheit und die Nähe zu erstklassigen internationalen Schulen und Parks bekannt ist.
-
Strategische Investoren: Al Jaddaf ist eine der am schnellsten wachsenden Gegenden in Dubai. Die Nähe zu Dubai Healthcare City und Downtown sorgt für einen konstanten Strom hochwertiger professioneller Mieter, die ausgezeichnete Mietrenditen und langfristige Liquidität bieten.
-
Städtische Fachkräfte und Touristen: Die Wohnung liegt in der Nähe der Metrostation Al Jaddaf und der Waterfront und ist für Kurzzeitmieten sehr attraktiv. Sie richtet sich an Besucher, die luxuriös wohnen und gleichzeitig den Flughafen und die Geschäftszentren der Stadt leicht erreichen möchten.
📍 Erstklassige Lage und Infrastruktur
Binghatti Moonlight befindet sich in einem sehr gut angebundenen Viertel. Die Bewohner haben direkten Zugang zur Jaddaf Waterfront, die für ihre Kunstzentren und Boutique-Cafés bekannt ist. Das Gebäude ist von wichtiger Infrastruktur umgeben, darunter Supermärkte, Fünf-Sterne-Hotels und Gesundheitseinrichtungen. Durch die direkte Anbindung an die Al Khail Road sind Sie nur 10 Minuten von der Dubai Mall und 15 Minuten vom internationalen Flughafen DXB entfernt.












