Estúdio espaçoso com zona de dormir privada em Olivia Gardens
Descubra o ponto de entrada perfeito no mercado imobiliário dos EAU com este Apartamento Estúdio inteligentemente concebido no Olivia Gardens Residence. Esta unidade distingue-se dos estúdios típicos por oferecer uma disposição que dá prioridade ao zoneamento funcional, criando uma sensação de espaço e separação raramente encontrada em casas compactas. É a escolha ideal para quem procura um estilo de vida moderno e de baixa manutenção sem comprometer o conforto.
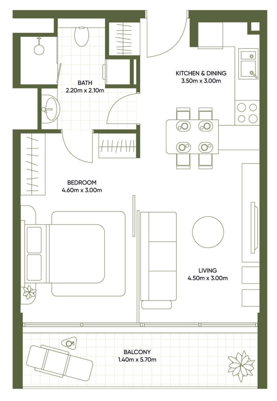
Disposição inteligente e zonas distintas
Ao contrário dos estúdios standard de caixa aberta, esta residência apresenta uma disposição semi-particionada que separa efetivamente os quartos de dormir das áreas sociais.
-
Área de dormir definida: A zona dos quartos (4.60m x 3.00m) está escondido para maior privacidade e possui um espaço amplo para uma cama grande, complementado por roupeiros embutidos para uma arrumação organizada.
-
Espaço social e de refeições: A área de estar (4.50m x 3.00m) flui naturalmente para a zona da Cozinha e Sala de Jantar (3.50m x 3.00m), criando um ambiente coeso para relaxar ou receber amigos.
-
Retiro ao ar livre: Uma varanda ampla (1.40m x 5.70m) estende-se a toda a largura do apartamento, proporcionando uma generosa extensão exterior ao espaço de vida, perfeita para relaxar ao fim da tarde.
-
Conveniência: Inclui uma casa de banho totalmente equipada (2,20m x 2,10m) situado perto do hall de entrada.
🎯 Ideal para
-
Investidores: Este estúdio representa um ativo de elevado rendimento. O zoneamento inteligente torna-o mais atraente para os inquilinos do que os estúdios normais, garantindo taxas de aluguer competitivas e uma elevada ocupação. Trata-se de um ativo líquido com um excelente potencial de retorno do investimento.
-
Jovens profissionais e solteiros: A disposição oferece um estilo de vida “lock-and-leave” com espaço suficiente para trabalhar confortavelmente a partir de casa. A proximidade de ligações de transportes e centros de negócios facilita as deslocações.
-
Turistas: Com a sua varanda de estilo resort e design eficiente, esta unidade está perfeitamente optimizada para alugueres de férias de curta duração (Airbnb), oferecendo uma alternativa acolhedora e económica aos hotéis.
📍 Estilo de vida e comodidades
Viver no Olivia Gardens Residence garante-lhe estar no centro de uma comunidade vibrante. Os residentes beneficiam de fácil acesso a infra-estruturas essenciais, incluindo supermercados locais, cafés e redes de transportes públicos. O design moderno do edifício e o foco na comunidade proporcionam um ambiente seguro e acolhedor para todos os residentes.













