🏠 Estúdio de design no Lucky Royale Residence
Descubra o epítome do minimalismo moderno neste elegante apartamento estúdio no prestigiado Lucky Royale Residence. Localizado num dos bairros residenciais de rápida valorização do Dubai, esta propriedade oferece uma mistura perfeita de luxo e funcionalidade. A residência foi concebida para aqueles que apreciam uma vida eficiente e de conceito aberto sem comprometer o estilo ou o conforto.
📐 Estrutura ergonómica e principais caraterísticas
A planta é uma aula magistral de otimização do espaço, assegurando que cada metro quadrado serve um propósito para um estilo de vida de alta qualidade:
-
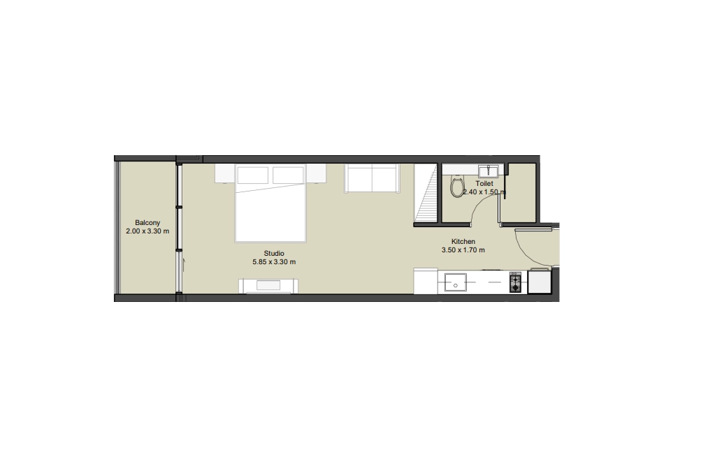
O Santuário Vivo: Uma ampla zona de estúdio com 5,85 x 3,30 m que integra facilmente as zonas de dormir e de estar.
-
Cozinha do chefe: Uma área de cozinha dedicada (3,50 x 1,70 m) situada perto da entrada, proporcionando um espaço profissional para actividades culinárias.
-
Extensão exterior: Uma generosa varanda privada (2,00 x 3,30 m) que funciona como uma extensão natural do espaço habitacional, perfeita para apreciar o horizonte da cidade.
-
Casa de banho completa: Uma casa de banho moderna e bem proporcionada com 2,40 x 1,50 m.
-
Luz natural: As grandes janelas do chão ao teto garantem que todo o espaço é banhado pela luz do sol, melhorando a sensação de abertura e arejamento da unidade.
📈 Uma escolha estratégica de investimento
Este estúdio no Lucky Royale Residence é um ativo de alto desempenho perfeitamente posicionado para os sectores mais activos do mercado imobiliário dos EAU:
-
Para investidores: Os estúdios em residências topo de gama como o Lucky Royale estão entre os activos mais líquidos no Dubai. Os investidores podem esperar um ROI excecional e uma elevada procura nos mercados de aluguer a curto e longo prazo devido ao prestígio do edifício.
-
Para turistas e profissionais: A sua proximidade com os principais centros de negócios, passeios à beira-mar e cafés da moda faz com que seja uma escolha de topo para nómadas digitais e turistas que procuram um estilo de vida “lock-up-and-go” de primeira qualidade.
-
Para famílias: Embora seja ideal para solteiros, também serve como uma residência secundária perfeita ou um apartamento de estudantes de alto nível devido à comunidade tranquila e à proximidade de instituições educacionais de primeira linha.
🏙️ Conectividade e infraestrutura de elite
O Lucky Royale Residence oferece aos residentes um estilo de vida de conveniência com infra-estruturas de classe mundial à sua porta. O condomínio está situado a momentos de distância de supermercados de luxo, ligações de transportes de alta velocidade e opções de restauração gourmet. Quer se dirija a uma reunião de negócios ou a um fim de semana na praia, a localização estratégica garante que está sempre ligado. Esta propriedade representa uma oportunidade segura e de alto rendimento dentro do portefólio exclusivo da Baytique.













