Estúdio elegante e moderno com varanda privada no Lucky Oasis Residence
Este estúdio cuidadosamente concebido oferece um equilíbrio perfeito entre conforto e funcionalidade, tornando-o num retiro urbano ideal.
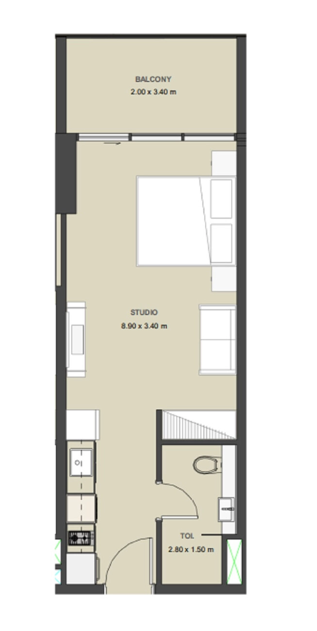
📐 Layout optimizado e principais caraterísticas
A sala de estar em plano aberto é excecionalmente espaçosa, medindo 8,90 x 3,40 m, o que permite uma transição perfeita entre a zona de dormir, a sala de estar e a zona de jantar. Uma cozinha linear moderna está eficientemente integrada perto da entrada para maximizar o espaço de vida utilizável.
O apartamento possui uma grande varanda privada (2,00 x 3,40 m), proporcionando uma maravilhosa extensão exterior para o café da manhã ou para relaxar ao fim da tarde, assegurando ao mesmo tempo que o interior é inundado de luz natural.
A unidade inclui uma casa de banho bem proporcionada (2,80 x 1,50 m) e um espaço de arrumação dedicado perto da entrada para manter uma estética limpa e minimalista.
🎯 Para quem é este imóvel?
-
Investidores inteligentes: Os apartamentos estúdio nos Emirados Árabes Unidos continuam a ser os activos com maior rendimento no mercado imobiliário. Com a sua disposição eficiente e localização num complexo moderno como o Lucky Oasis, esta unidade promete elevadas taxas de ocupação, excelente valorização do capital e uma forte procura de arrendamento por parte de jovens profissionais.
-
Turistas e locatários de curta duração: Este estúdio é uma propriedade perfeita para viajantes. A sua proximidade a cafés locais, centros comerciais e ligações de transportes torna-o uma escolha atractiva para aqueles que procuram uma alternativa premium a um quarto de hotel.
-
Jovens profissionais: Para pessoas individuais ou casais, esta casa oferece um estilo de vida com pouca manutenção e muito estilo. A casa de banho isolada e a área de arrumação garantem privacidade e organização, enquanto as grandes janelas criam um ambiente arejado e luminoso.
🏙️ Estilo de vida e infra-estruturas
Viver em Lucky Oasis Residence significa fazer parte de uma comunidade vibrante. Os residentes beneficiam da proximidade de infra-estruturas essenciais, incluindo supermercados, boutiques e excelentes ligações de transportes. A área circundante foi concebida para conveniência, oferecendo fácil acesso aos principais passeios e zonas comerciais da cidade, garantindo que tudo o que precisa está apenas a alguns minutos de distância.













