🏠 Sofisticado apartamento de 2 quartos + quarto de empregada no Parkway
Bem-vindo a esta residência meticulosamente projectada no prestigiado empreendimento Parkway, situado num dos centros residenciais mais procurados dos Emirados Árabes Unidos. Este espaçoso apartamento de 2 quartos e quarto de empregada representa o epítome da vida urbana moderna, combinando acabamentos de alta qualidade com um layout altamente funcional concebido para conforto e prestígio.
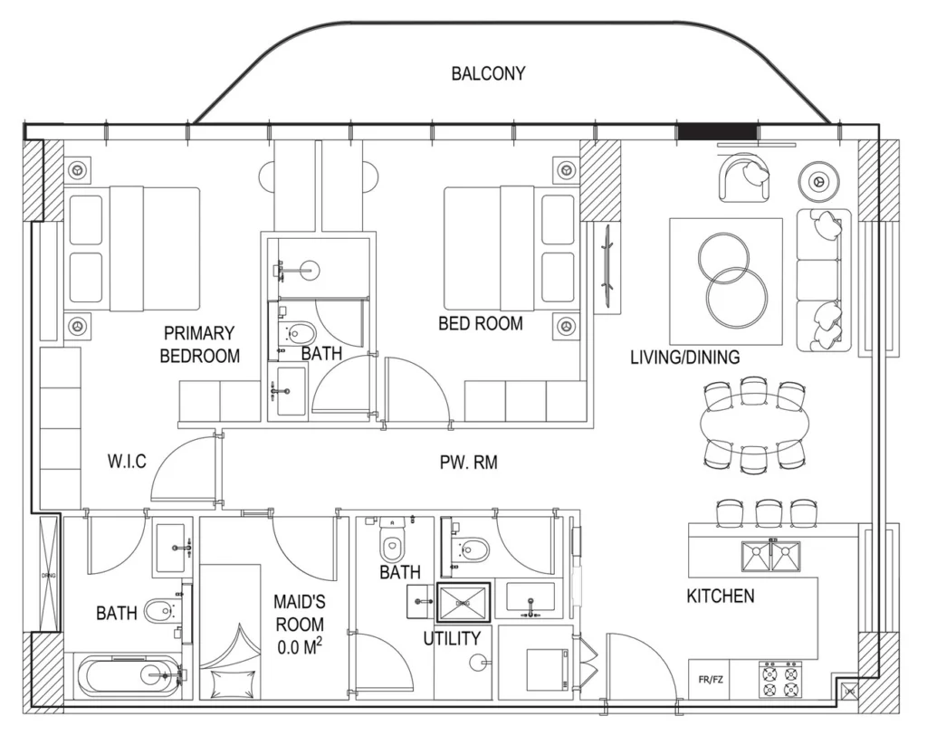
📐 Estrutura e principais caraterísticas
A planta foi habilmente elaborada para maximizar o espaço, a luz e a privacidade:
-
Espaço habitável: Uma área de estar e de jantar expansiva e em plano aberto é o coração da casa, perfeitamente ligada a uma cozinha moderna - perfeita para reuniões familiares e para um entretenimento elegante.
-
Suítes Privativas: O quarto principal é um verdadeiro santuário, com um closet dedicado (W.I.C.) e uma luxuosa casa de banho privativa. O segundo quarto está igualmente bem equipado com acesso fácil às instalações.
-
Acréscimos funcionais: A única caraterística desta disposição é o quarto de empregada separado com a sua própria casa de banho privativa, uma despensa/lavandaria dedicada e uma casa de banho para hóspedes (PW. RM), assegurando que as principais áreas de estar permanecem livres de confusão.
-
O Terraço: Uma caraterística que se destaca é a enorme varanda contínua que se estende por todo o comprimento do apartamento. Todas as divisões principais - a sala de estar e os dois quartos - têm acesso direto a este espaço exterior, proporcionando uma vida interior-exterior perfeita.
🎯 Ideal para:
-
Famílias: A configuração “2BR + empregada” é o padrão de ouro para as famílias nos Emirados Árabes Unidos. Oferece a privacidade necessária aos pais, um espaço dedicado para ajuda ou arrumação extra, e está normalmente localizado perto de escolas internacionais de topo e parques comunitários.
-
Investidores: Este tipo específico de unidade é altamente líquido e tem uma procura consistentemente elevada. Os investidores podem esperar fortes rendimentos de aluguer (ROI) e uma excelente valorização do capital devido à popularidade do complexo Parkway.
-
Turistas e pessoas que procuram um estilo de vida: Com a sua proximidade aos passeios à beira-mar e aos cafés vibrantes, este apartamento é um candidato privilegiado para alugueres de curta duração de gama alta, oferecendo uma experiência semelhante à de um resort com o conforto de casa.
🌆 Serviços e infra-estruturas
Viver em Parkway significa ter o mundo à sua porta:
-
Centros de fitness topo de gama e piscinas com temperatura controlada.
-
Caminhos pedonais e zonas de lazer com um belo enquadramento paisagístico.
-
Um bairro vibrante com supermercados, boutiques e restaurantes requintados.
-
Ligações de transportes estratégicas que permitem um acesso rápido ao aeroporto e às principais zonas comerciais da cidade.













