🏠 Requintada mansão ‘Cannes’ com 2 quartos em Bugatti Residences
Mergulhe no luxo hiper-formal do Bugatti Residences. Esta unidade exclusiva “Cannes” não é apenas um apartamento; é uma mansão no céu concebida com as curvas orgânicas e a sofisticação da Riviera Francesa. Localizada no coração de Business Bay, esta residência oferece uma mistura perfeita de excelência automóvel e mestria arquitetónica, proporcionando um estilo de vida único para os mais exigentes.
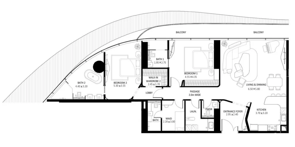
📐 Layout e principais características
Esta residência meticulosamente concebida apresenta uma disposição fluida que maximiza o espaço e a luz natural.
-
Espaço amplo: O coração da casa é a ampla área de estar e de jantar (6.50 x 5.80m), perfeito para entretenimento, que se abre diretamente para uma varanda contínua que envolve toda a unidade, oferecendo uma vida interior-exterior fluida.
-
Quartos: Possui dois quartos luxuosamente decorados. Quarto 1 (Master) (4.55 x 4.35m) inclui um guarda-roupa privado e uma casa de banho privativa tipo spa. Quarto 2 (5.30 x 3.55m) é igualmente impressionante, com a sua própria casa de banho e uma banheira independente de assinatura posicionada perto do vidro para vistas deslumbrantes.
-
Serviço e conveniência: O layout é optimizado para a funcionalidade com um Foyer de entrada dedicado, uma cozinha separada (3.70 x 3.20m), uma casa de banho para hóspedes, uma lavandaria e um quarto de empregada privado (2.20 x 3.00m) com casa de banho própria.
🎯 Perfeito para
- Famílias: Ideal para famílias pequenas que valorizam a privacidade e o conforto. A inclusão de um quarto de empregada e de uma área de lavandaria separada torna a vida quotidiana mais fácil. O layout garante privacidade acústica entre as áreas de estar e os quartos, criando um santuário sereno perto das melhores escolas internacionais e parques da cidade.
- Amantes do luxo e turistas: Um ativo troféu para quem procura uma casa de férias. O design inspirado na Riviera e a enorme varanda proporcionam uma sensação de resort no centro da cidade. É perfeito para estadias longas, oferecendo acesso rápido ao Dubai Mall, a restaurantes requintados e ao vibrante passeio marítimo de Business Bay.
- Investidores estratégicos: Um ativo de elevada liquidez com a lendária marca Bugatti. Historicamente, as residências de marca no Dubai têm demonstrado uma valorização superior do capital e um rendimento de arrendamento de primeira qualidade. A disposição única de “Cannes” garante que esta unidade continua a ser uma peça de coleção rara e desejável no mercado imobiliário.
Infra-estruturas próximas
-
A minutos de distância do Burj Khalifa e do Dubai Mall.
-
Proximidade do passeio marítimo do Canal de Água do Dubai para passeios noturnos.
-
Rodeado por restaurantes de elite, centros de negócios e hotéis de luxo.













