🏠 Requintado T1 de luxo com piscina de mergulho privada no Allegro Park
A Baytique tem o prazer de apresentar esta sofisticada residência com 1 quarto no coração do Allegro Park. Este apartamento oferece uma aula de mestre em design funcional moderno, perfeitamente adequado para aqueles que valorizam tanto a privacidade como uma experiência de estilo resort em casa. Situada num prestigiado bairro dos Emirados Árabes Unidos, esta propriedade combina acabamentos interiores de alta qualidade com uma extraordinária área exterior que a distingue das habitações urbanas normais.
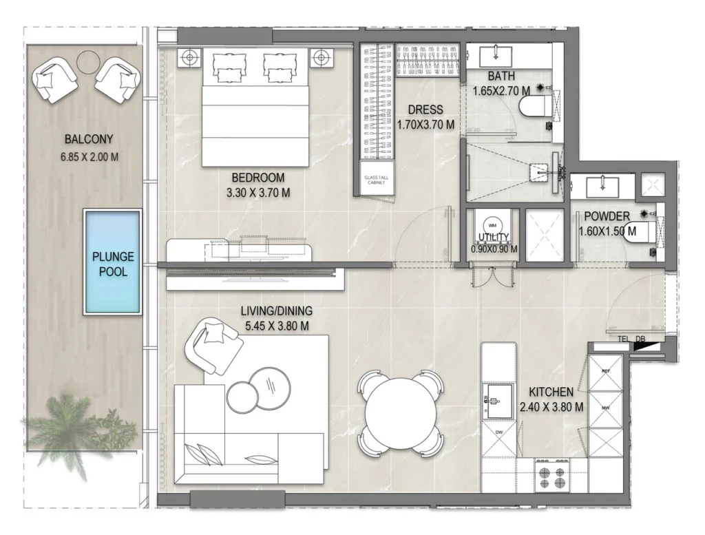
Layout sofisticado e caraterísticas exclusivas
O layout está inteligentemente dividido em zonas sociais e privadas distintas para maximizar o conforto e a utilidade:
-
O Centro Social: Uma espaçosa área de estar/jantar (5,45 x 3,80 m) flui perfeitamente para uma cozinha gourmet (2,40 x 3,80 m), criando um ambiente aberto e arejado para entretenimento.
-
Suíte Master Privativa: O santuário possui um quarto generoso (3,30 x 3,70 m) ligado a um quarto de vestir dedicado (1,70 x 3,70 m) e uma casa de banho completa (1,65 x 2,70 m).
-
Oásis exterior exclusivo: A caraterística de destaque é a enorme varanda (6,85 x 2,00 m) que inclui uma piscina de mergulho privada, oferecendo um luxo raro para uma unidade com 1 quarto e proporcionando vistas deslumbrantes através de grandes janelas do chão ao teto.
-
A máxima comodidade: O plano é cuidadosamente completado com uma casa de banho para hóspedes (1,60 x 1,50 m) e um armário de utilidades separado (0,90 x 0,90 m) para manter as tarefas domésticas discretas.
Uma combinação estratégica para compradores exigentes
-
Para casais e famílias jovens: A presença de uma casa de banho separada para hóspedes e de um amplo closet garante o máximo de privacidade e organização. A sua localização num bairro calmo e de primeira qualidade proporciona um retiro tranquilo, mantendo-se ao mesmo tempo perto de escolas de primeira linha e parques comunitários.
-
Para os turistas Premium: Um apartamento com a sua própria piscina privada é um “ativo troféu” muito procurado para alugueres de curta duração de alta qualidade. Os viajantes que procuram uma estadia única, semelhante a um resort, com acesso imediato aos cafés locais e à beira-mar, acharão esta unidade irresistível.
-
Para investidores sofisticados: As unidades com caraterísticas arquitectónicas únicas, como uma piscina com varanda embutida, têm prémios de arrendamento significativamente mais elevados e demonstram uma forte resiliência no crescimento de capital. Esta propriedade representa um ativo altamente líquido com um excelente ROI projetado no próspero mercado imobiliário dos EAU.
📍 Infraestrutura e conectividade de primeira linha
Os residentes do Allegro Park beneficiam de um ambiente de classe mundial onde a conveniência encontra a elegância. O complexo está rodeado por boutiques de retalho de elite, supermercados gourmet e ligações de transportes perfeitas. Quer esteja a dar um passeio matinal ao longo do dique próximo ou a deslocar-se para um importante centro de negócios, tudo é facilmente acessível. Esta residência oferece o equilíbrio perfeito entre uma vida doméstica tranquila e a energia vibrante da cidade.













