🏠 Elite Two-Story 3-Bedroom Townhouse + Study at Flow Residences
Experience the pinnacle of urban luxury in this magnificent 3-bedroom townhouse at Flow Residences, Dubai. This rare two-story residence offers an expansive and versatile layout, perfectly suited for those who demand the privacy of a villa with the sophisticated amenities of a premium apartment complex. Spanning two levels with multiple wrap-around balconies, this home provides a massive living area designed for grand entertainment and tranquil family life.
📐 Masterful Layout & Design
The residence is intelligently partitioned to ensure maximum functionality across both floors:
-
Lower Floor (Social & Service Hub): Features a welcoming entrance (3.06 m x 1.30 m) leading to a professional-grade kitchen (4.09 m x 3.15 m) and a grand dining area (3.90 m x 3.59 m). The light-filled living area (4.48 m x 4.01 m) opens onto two distinct balconies (8.40 m x 1.50 m and 11.05 m x 1.50 m). This level also hosts a guest bedroom (3.80 m x 3.60 m), a separate maid’s room (3.20 m x 2.25 m) with its own bathroom, and a powder room for guests.
-
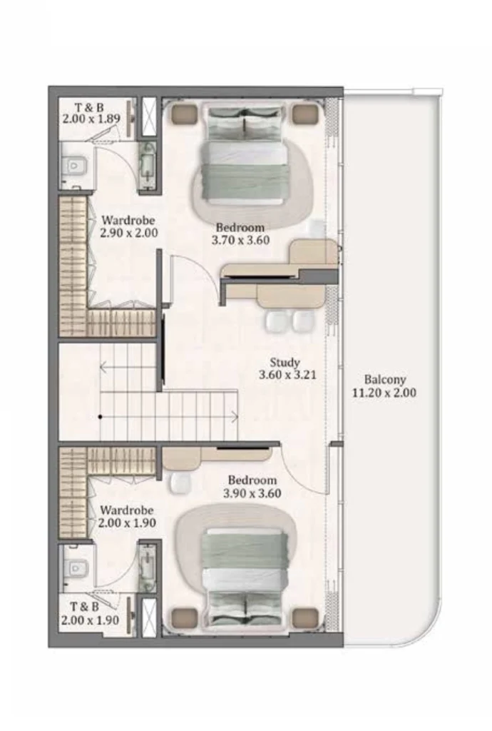
Upper Floor (Private Sanctuary): Dedicated to rest and productivity, this level features two expansive bedrooms. One bedroom (3.90 m x 3.60 m) includes a dedicated wardrobe (2.00 m x 1.90 m) and en-suite bath, while the second bedroom (3.70 m x 3.60 m) features a larger wardrobe (2.90 m x 2.00 m) and its own private bathroom. A central study (3.60 m x 3.21 m) provides the perfect home office or library, all opening onto another massive balcony (11.20 m x 2.00 m).
-
Architecture & Light: Floor-to-ceiling glass windows throughout the duplex ensure every room is bathed in natural light while offering stunning panoramic views of the surrounding cityscape.
🎯 A Strategic Investment for Every Buyer
The unique configuration of this townhouse makes it a high-value asset in the UAE market:
-
For Large Families: The clear separation between social areas downstairs and bedrooms upstairs provides the privacy families crave. With a dedicated maid’s room, a study for remote work, and proximity to elite schools, it is a perfect long-term home.
-
For Investors: Duplexes of this scale are high-liquidity trophy assets in Dubai. The inclusion of a maid’s room and a study significantly increases rental demand and ROI, appealing to high-net-worth corporate tenants and multi-generational families.
-
For Luxury Travelers: The resort-style balconies and proximity to the sea and trendy cafes make this an unbeatable option for premium short-term holiday rentals.
📍 Premier Infrastructure & Connectivity
Flow Residences is located in a prime neighborhood that offers a comprehensive lifestyle package. Residents have access to a world-class fitness center, a sparkling swimming pool, and 24/7 security.
The surrounding area is rich with infrastructure, including gourmet supermarkets, luxury boutiques, and scenic waterfront promenades. Excellent transport links ensure you are only a short drive away from the Burj Khalifa and Dubai’s major financial districts. This townhouse is situated on the highest residential floors, offering the best views and a peaceful retreat from the city below.















