🏠 Grand 3-Bedroom + Office + Maid’s Suite at Allegro Residences
Experience the pinnacle of waterfront living at Allegro Residences, a premier destination presented by Baytique. This expansive 3-bedroom residence is masterfully designed to offer a “sky-villa” experience, combining grand social spaces with highly functional private quarters. Featuring a dedicated office, a maid’s room, and three separate balconies, this home is a rare find in the UAE market, perfectly suited for those who refuse to compromise on space or prestige.
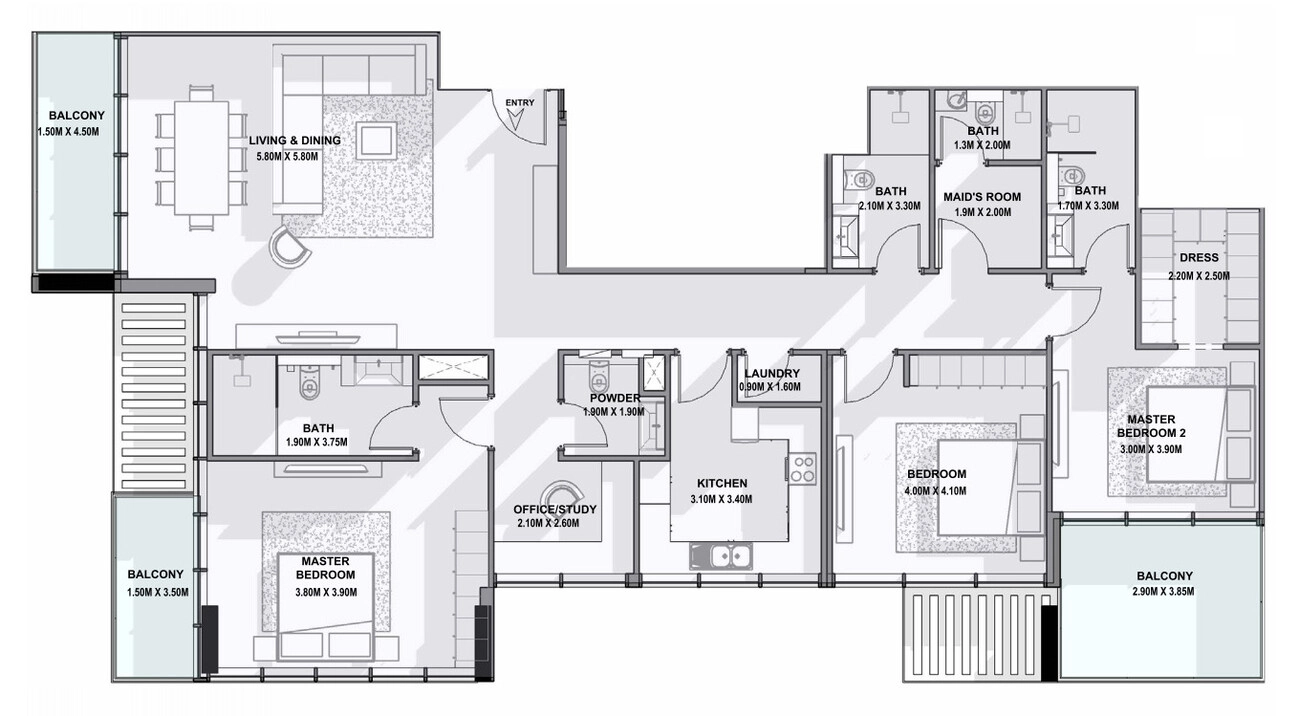
📐 Masterful Layout & Exceptional Dimensions
The residence is defined by its intelligent zoning and impressive scale, ensuring every family member enjoys their own private sanctuary:
-
Grand Social Heart: A massive 5.80m x 5.80m Living & Dining area serves as the central hub, complemented by a large, modern 3.10m x 3.40m Kitchen.
-
Triple Master & Guest Suites: The layout features two distinct master bedrooms (3.80m x 3.90m and 3.00m x 3.90m) with en-suite baths, plus a spacious third bedroom (4.00m x 4.10m). One master suite includes a dedicated 2.20m x 2.50m Dressing Room.
-
Productivity & Service: Includes a private 2.10m x 2.60m Office/Study, a dedicated Maid’s Room (1.9m x 2.00m) with its own bathroom, and a separate laundry room.
-
Outdoor Living: Uniquely features three separate balconies (spanning 1.50m x 4.50m, 1.50m x 3.50m, and a large 2.90m x 3.85m terrace), providing multiple panoramic views and fresh air from every corner of the home.
-
Privacy & Convenience: A separate Powder Room (1.90m x 1.90m) is located near the entry foyer to maintain the privacy of the main bedrooms during social gatherings.
🎯 A Strategic Match for Discerning Buyers
-
For Families: This is the ultimate family home. The split-bedroom layout provides maximum privacy, while the dedicated study and maid’s quarters offer the infrastructure needed for a seamless, high-end lifestyle. Its location within a quiet, premium district ensures proximity to top international schools and safe, lush parks.
-
For Premium Tourists: This “trophy” apartment is a magnet for the luxury short-term rental market. The massive footprint, private office, and multiple balconies make it an irresistible choice for high-net-worth travelers seeking a resort-style stay with the comforts of a mansion.
-
For Sophisticated Investors: Large-scale units (3BR+) with maid’s rooms and offices are currently the most sought-after assets in the UAE for long-term lease. With the scarcity of such functional layouts in prime waterfront developments, investors can expect exceptional capital appreciation and high-yield stability.
📍 Prime Infrastructure & Lifestyle
Living at Allegro Residences puts the best of the city at your doorstep. Residents enjoy direct access to a world-class waterfront promenade, gourmet supermarkets, and luxury retail boutiques. The complex features seamless transport connectivity, making it easy to reach major business hubs while living in a tranquil, elite environment. This residence offers the perfect balance of metropolitan energy and residential serenity.















