🏠 Exquisite 2-Bedroom ‘Emerald Villa’ in Burj Binghatti Jacob & Co Residences
Experience the pinnacle of “Hypertower” living in the world’s tallest residential structure: Burj Binghatti Jacob & Co Residences, located in the heart of Business Bay, Dubai. This ultra-luxury 2-Bedroom Mansion, known as the Emerald Villa, offers a lifestyle inspired by high-watchmaking and jewelry, blending architectural brilliance with unparalleled opulence.
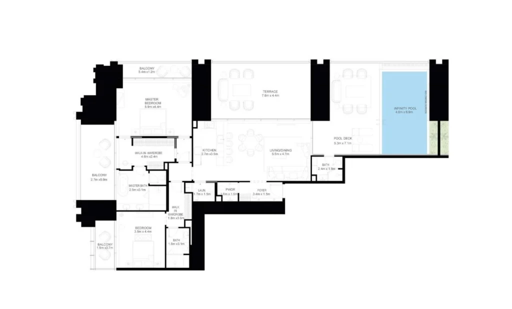
📐 Masterful Layout & Interior Benefits
The villa is meticulously designed to offer expansive, light-filled spaces with a focus on privacy and flow:
-
Living & Social Hub: A grand Foyer (3.4m x 1.5m) leads into a vast Living/Dining area (6.5m x 4.7m) and a modern Kitchen (2.7m x 3.5m), creating a perfect environment for hosting.
-
Private Sanctuaries: Both bedrooms are designed as isolated suites. The Master Bedroom (5.9m x 4.4m) features a massive Walk-in Wardrobe (4.6m x 2.4m) and a spa-like bathroom. The Second Bedroom (3.8m x 4.4m) also boasts its own walk-in closet and private bath.
-
Functional Elegance: The layout includes a dedicated Laundry room (1.7m x 1.5m) and a guest Powder room (1.6m x 1.5m) to maintain the home’s sleek organization.
- The Ultimate Outdoor Experience: The Emerald Villa sets a new standard for outdoor luxury with a massive Terrace (7.8m x 4.4m) and a dedicated Pool Deck (5.3m x 7.1m). The crown jewel is the private Infinity Pool (4.0m x 6.9m), which features an integrated Big Cinema Screen, allowing you to enjoy world-class entertainment while floating above the Dubai skyline. Multiple private balconies (including a 2.7m x 5.9m space) wrap around the residence to ensure breathtaking views from every corner.
📈 Investment & Lifestyle Suitability
-
For Families: The layout provides exceptional privacy with bedrooms situated in a separate wing from the social areas. The proximity to Downtown’s top international schools and parks makes it a secure, prestigious family base.
-
For Tourists & Jetsetters: With its private infinity pool and “Cinema Screen,” this villa is a trophy property for short-term luxury rentals, catering to high-net-worth travelers seeking a resort-style experience in the city center.
-
For Investors: As a branded residence by Jacob & Co, this property offers high liquidity and strong capital appreciation. The unique “Emerald Villa” tier is highly sought after, ensuring consistent demand and premium rental yields in Dubai’s booming real estate market.
📍 Infrastructure & Location
Situated in Business Bay, residents enjoy immediate access to the Dubai Water Canal promenade, high-end retail boutiques, and fine-dining destinations. The tower is perfectly positioned for effortless transport links to the Burj Khalifa, Dubai Mall, and the city’s main financial hubs.















