🏠 Premier 2-Bedroom + Study at Allegro Residences
Discover a new standard of urban luxury at Allegro Residences, an architectural gem located in one of the UAE’s most vibrant waterfront districts. This expertly designed 2-bedroom apartment plus a dedicated office/study offers a harmonious balance of productivity and relaxation. Spanning a generous layout that includes two private outdoor spaces, this residence is perfectly positioned for those who demand a premium lifestyle within a world-class community.
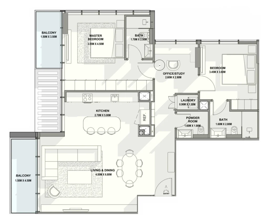
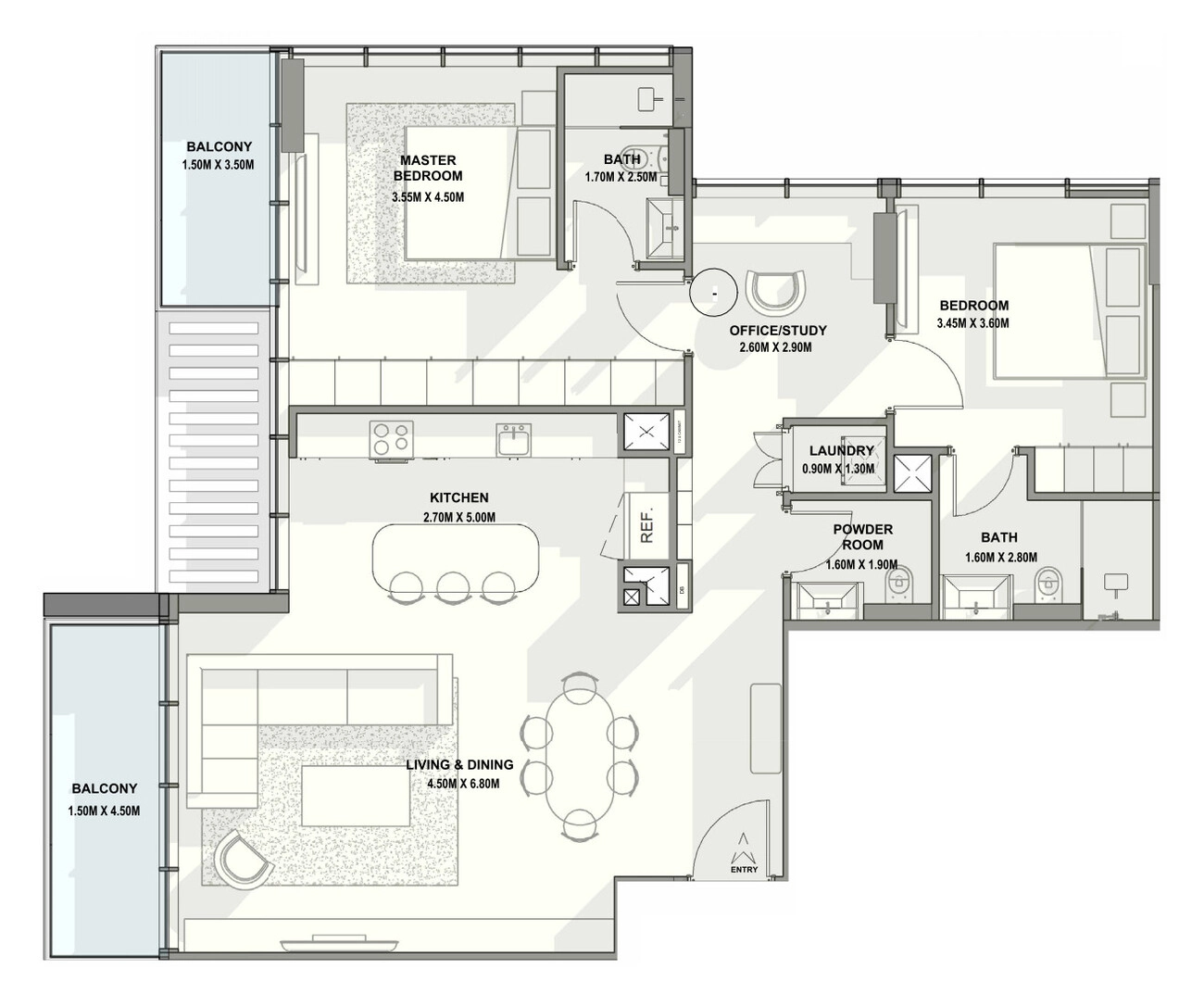
📐 Innovative Layout & Functional Excellence
The apartment is masterfully partitioned to provide distinct zones for work, social life, and rest:
-
The Social Hub: A grand Living & Dining area measuring 4.50m x 6.80m flows into a modern, high-spec Kitchen (2.70m x 5.00m), creating a vast open space for entertaining.
-
Work from Home: Uniquely features a dedicated Office/Study (2.60m x 2.90m), providing a quiet sanctuary for the modern professional.
-
Private Retreats: The Master Bedroom (3.55m x 4.50m) includes a private en-suite Bath (1.70m x 2.50m), while a secondary Bedroom (3.45m x 3.60m) is located near a second full bathroom.
-
Outdoor Living: Two separate Balconies (1.50m x 3.50m and 1.50m x 4.50m) provide multiple vantage points to enjoy the surrounding views.
-
Convenience: The floor plan is completed with a dedicated Laundry room (0.90m x 1.30m) and a guest Powder Room (1.60m x 1.90m) near the entry for maximum privacy.
🎯 A Strategic Investment for Every Lifestyle
-
For Families: The split-bedroom design ensures total privacy between the master suite and the second bedroom, making it an ideal environment for families with children. Its location near top-tier schools and safe recreational parks adds to its long-term appeal.
-
For Tourists & Executives: The inclusion of a dedicated study and two balconies makes this property a “trophy asset” for high-end short-term rentals. Its proximity to the waterfront promenade, trendy cafes, and luxury boutiques ensures high demand year-round.
-
For Savvy Investors: 2-bedroom units with a “plus study” configuration are among the most liquid and high-demand assets in the current UAE market. Investors can expect robust rental yields and significant capital appreciation due to the rare and functional nature of this specific layout.
📍 Prime Infrastructure & Community
Living at Allegro Residences puts you at the heart of the action. The building is surrounded by elite infrastructure, including gourmet supermarkets, seamless transport links, and a scenic embankment for evening strolls. Whether you are commuting to major business hubs or enjoying the local leisure scene, everything is just steps away. This property represents the perfect synergy of luxury, convenience, and investment security.















