🏠 Luxury 1-Bedroom Apartment at Berkeley Square
Baytique is proud to present a refined 1-bedroom residence in the highly anticipated Berkeley Square complex. Located in the heart of one of the UAE’s most prestigious residential districts, this apartment offers a perfect blend of high-end design and functional elegance. The layout is meticulously crafted to provide an open-concept feel while maintaining distinct zones for work, relaxation, and hosting, making it a premier choice for the discerning urban dweller.
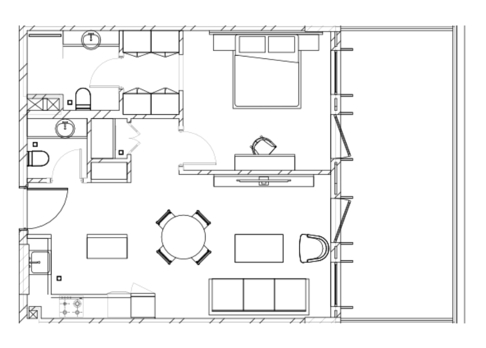
📐 Intelligent Design & Layout Benefits
This 1-bedroom apartment stands out for its spacious and thoughtful configuration:
-
Open-Plan Social Space: A generous living and dining area merges with a modern, integrated kitchen, creating a bright environment ideal for both quiet evenings and social gatherings.
-
Master Suite Sanctuary: The large bedroom features double wardrobes for ample storage and a dedicated integrated workspace/desk, perfect for the modern professional.
-
Premium Amenities: The residence includes a private en-suite master bathroom and a separate guest powder room, a rare and highly valued feature for 1-bedroom units that ensures guest privacy.
-
Expansive Outdoor Living: A massive full-width balcony is accessible from both the living room and the bedroom, effectively extending your living space outdoors for al fresco dining or morning coffee.
-
Functional Storage: The layout is completed with a dedicated laundry/utility closet, keeping household chores discreetly tucked away.
🎯 The Perfect Match For
-
Professionals & Couples: The inclusion of a dedicated workspace and a separate guest toilet provides the privacy and functionality needed for those working from home or hosting visitors in a quiet, upscale environment.
-
High-End Tourists: Its proximity to the city’s main attractions, combined with the huge balcony and resort-style feel of the complex, makes it an exceptionally attractive option for luxury short-term rentals.
-
Strategic Investors: Berkeley Square is synonymous with high-quality finishes and strong capital appreciation. 1-bedroom units with guest toilets and large balconies are among the most liquid assets in the UAE market, promising high occupancy rates and excellent rental yields.
📍 Location & Infrastructure
Residents of Berkeley Square benefit from world-class infrastructure within a short distance. The area features landscaped parks, premium retail outlets, and international schools, providing a “city-within-a-city” lifestyle. With excellent transport links and a nearby waterfront promenade, the complex offers a tranquil escape with immediate connectivity to the bustling heart of the city.















