🏠 Elegante apartamento tipo estudio con balcón privado en Majestique Residence 2
Presentamos un elegante y eficiente apartamento tipo estudio en el moderno complejo ‘Majestique Residence 2’, presentado por Baytique. Diseñado para el urbanita exigente, este estudio aprovecha al máximo el espacio y la luz, y cuenta con un balcón privado y una inteligente distribución diáfana. Es el punto de partida perfecto hacia un estilo de vida premium para solteros, jóvenes profesionales o como activo de alquiler de alta demanda para inversores.
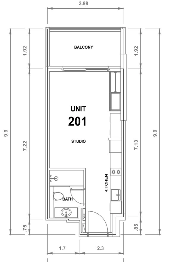
📐 Diseño diáfano inteligente y eficiente
Este estudio es un ejemplo magistral de cómo vivir de forma compacta pero cómoda, aprovechando cada metro de forma inteligente:
-
Espacio diáfano y versátil: la amplia zona principal (aprox. 9,9 m x 7,13 m) crea un ambiente luminoso y aireado, y ofrece una distribución flexible para las zonas de dormitorio, salón y comedor según sus necesidades.
-
Acceso privado al exterior: El apartamento cuenta con un balcón privado, lo que proporciona una valiosa extensión al aire libre para disfrutar del aire fresco y las vistas de la ciudad, una característica que mejora significativamente la experiencia de vivir en un estudio.
-
Totalmente equipado para la vida moderna: la distribución incluye una zona de cocina y un cuarto de baño moderno y completo, lo que garantiza que todos los elementos esenciales estén perfectamente integrados para un estilo de vida cómodo e independiente.
🎯 Perfecto para empezar o invertir con inteligencia
👤 Ideal para solteros y jóvenes profesionales
Este estudio ofrece una vivienda asequible y de bajo mantenimiento en un prestigioso complejo sin renunciar a la calidad. El balcón privado le da un toque de lujo, proporcionando un refugio personal al aire libre, una característica poco común y valiosa que lo hace perfecto para comenzar una vida independiente en la ciudad.
✈️ Gran demanda en el mercado del alquiler
Los estudios son muy solicitados por estudiantes, jóvenes profesionales y turistas debido a su asequibilidad y eficiencia. Esta unidad, con sus acabados modernos y balcón, resultará especialmente atractiva, lo que garantizará altas tasas de ocupación, una rápida rotación de inquilinos y unos ingresos por alquiler fiables.
📈 Una inversión inicial de primer nivel con sólidos fundamentos.
Los estudios son famosos por su alta liquidez y sus atractivos rendimientos por alquiler. Su accesible precio de entrada los convierte en una primera inversión ideal, mientras que la demanda constante de una amplia base de inquilinos garantiza una sólida rentabilidad. Este apartamento, dentro de la marca ‘Majestique’, está posicionado tanto para obtener rendimientos estables por alquiler como para el crecimiento del capital.
📍 Un estilo de vida conectado en un enclave moderno
‘Majestique Residence 2’ ofrece el prestigio y las comodidades modernas que su nombre evoca. Los residentes pueden disfrutar de un entorno contemporáneo con fácil acceso a las comodidades urbanas. El complejo está estratégicamente situado cerca de cafeterías, tiendas y servicios esenciales, con excelentes conexiones de transporte que permiten llegar fácilmente a los distritos comerciales y lugares de ocio. Aunque la planta concreta está aún por confirmar, las dimensiones del apartamento y el balcón prometen una excelente luz natural y un ambiente agradable.













