WPCS 2.2.0.5
"Reef 998"

Apartamentos de 3 DORM "Reef 998"

Características de las instalaciones

Hacer una pregunta sobre el objeto

Promotor: Reef Luxury Developments

Mercado inmobiliario: Principal

Tipo de propiedad:  Apartamento

Número de plantas: 20

Entrega: Segundo trimestre de 2028

Habitaciones: 3 BR

Piso: 19

Superficie total: 130 m²

Balcón: 16 m²

Ver: Piscina y horizonte

Mobiliario: Parcialmente amueblado

Ubicación

Lugares cercanos
Aeropuerto
24 min
Mercado
11 minutos
Hospital
12 minutos
Universidad
10 minutos
Parque
15 minutos

Plan de pago

Coste de£386 427
Las condiciones y los planes de pago cambian regularmente, nuestro especialista le proporcionará información actualizada.
Pago inicial
20%
Pagos previos al traspaso
40%
En la entrega
40%
Calcular el pago

Características adicionales

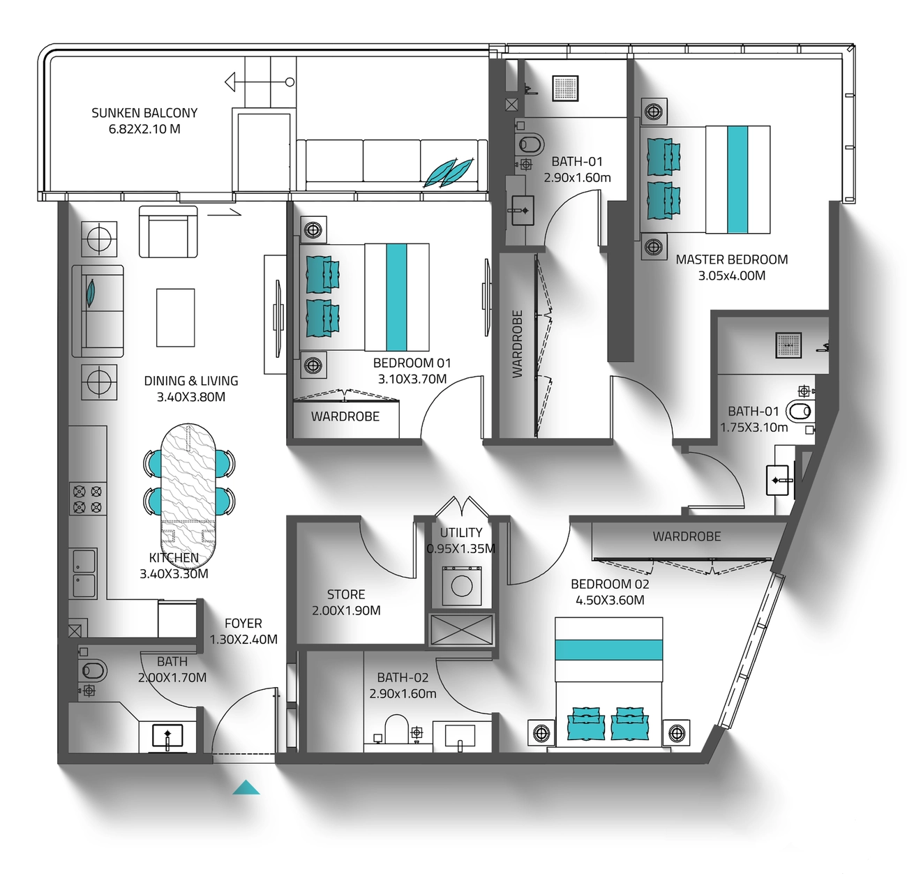
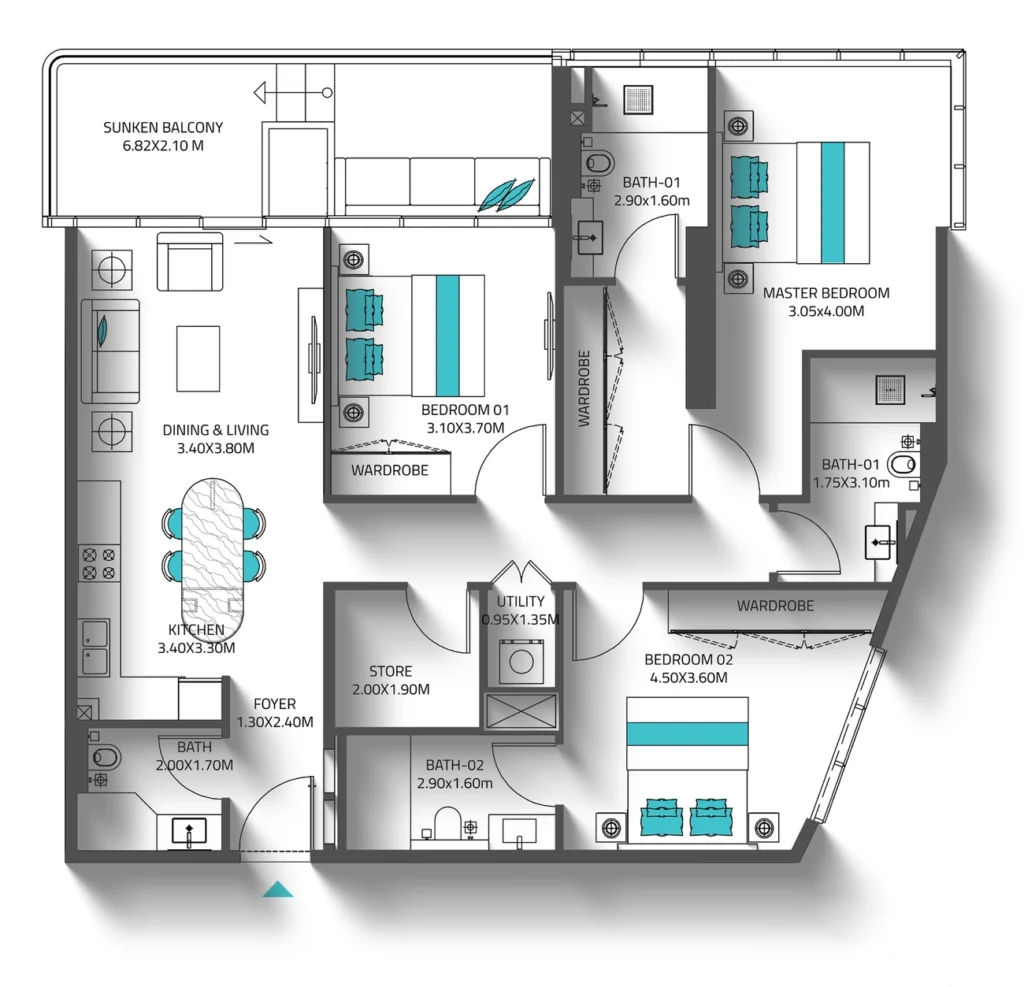
🌟 Amplio apartamento de 3 dormitorios con balcón hundido en Reef 998

Descubra un elegante y bien diseñado apartamento de 3 dormitorios en la moderna comunidad residencial Reef 998, situada en uno de los distritos costeros de más rápido desarrollo de los Emiratos Árabes Unidos.

📐 Diseño y principales ventajas

Diseñado para ofrecer comodidad, privacidad y funcionalidad, este apartamento cuenta con:

  • 3 dormitorios completos, incluyendo un espacioso dormitorio principal (3,05 × 4,00 m) con baño privado.

  • Dos dormitorios adicionales (3,10 × 3,70 m y 4,50 × 3,60 m), ambos con armarios empotrados.

  • Luminoso comedor y sala de estar (3,40 × 3,80 m) con acceso a un gran balcón hundido (6,82 × 2,10 m), perfecto para cenar al aire libre o montar un salón.

  • Cocina moderna abierta (3,40 × 3,30 m) con una funcional isla comedor.

  • Tres baños + un baño adicional para invitados cerca de la entrada.

  • Lavadero + Trastero para mayor comodidad

  • Diseño bien pensado con zonas de dormitorios aisladas, amplias ventanas para que entre la luz natural y una espaciosa sala de estar central ideal para la vida familiar y recibir invitados.

  • Una configuración equilibrada que garantiza la privacidad sin sacrificar la apertura.

🎯 Perfecto para

👨‍👩‍👧 Familias con niños 
El ala apartada de los dormitorios, el entorno tranquilo, el amplio espacio de almacenamiento y la proximidad a colegios, parques y servicios esenciales hacen de esta una excelente vivienda familiar.

✈️ Turistas y visitantes de corta estancia 
Con amplias habitaciones, varios cuartos de baño y un gran balcón, el apartamento ofrece un confort excepcional, lo que lo convierte en una opción ideal para alquileres vacacionales cerca de la costa, cafeterías y locales de ocio.

📈 Inversores 
La alta liquidez, la demanda estable de alquileres y la fuerte revalorización del capital en el distrito Reef 998 hacen de esta unidad un activo inteligente a largo plazo. Su distribución de 3 dormitorios es poco habitual y muy atractiva en el mercado del alquiler.

🛍️ Infraestructura cercana

La comunidad ofrece un cómodo acceso a supermercados, paseos marítimos, transporte público, colegios, gimnasios, cafeterías y servicios para la vida cotidiana, lo que garantiza a los residentes comodidad y conectividad.

Catálogo de objetos
Recibir en WhatsApp
Daniel
Experto inmobiliario

    Envíanos un mensaje de mensajería:
    Formule una pregunta
    Seleccione un inmueble
    Obtener el catálogo actual
    Nuestros contactos
    Baytique Realty
    EAU, Dubai, Dubai Hills Estate, Park Heights Square 1
    ¿No ha encontrado lo que buscaba?
    Responda a 4 preguntas: obtendrá una selección de objetos personalizada para usted
    Iniciar selección
    ¿No ha encontrado lo que buscaba?
    Obtén un catálogo listo de los mejores inmuebles en WhatsApp o una selección personalizada según tus criterios