🏠 Residencia Premium de 3 dormitorios con cuarto de servicio en Parkway
Bienvenido a este sofisticado apartamento de 3 dormitorios más cuarto de servicio en la prestigiosa urbanización Parkway. Situada en uno de los distritos residenciales más codiciados de los EAU, esta amplia residencia ofrece una experiencia de vida sin igual. Representada por Baytique, esta propiedad combina la elegancia urbana con un diseño altamente funcional, para aquellos que se niegan a renunciar al espacio o al estilo.
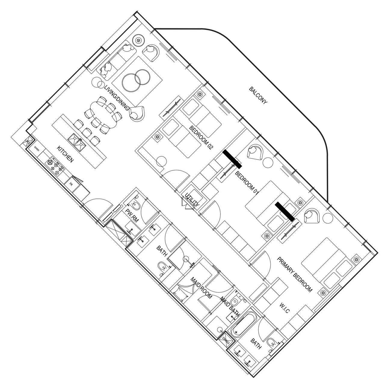
📐 Diseño y principales ventajas
La planta es una clase magistral de ergonomía moderna, diseñada para maximizar tanto la privacidad como la luz natural.
-
La zona de estar: Una amplia zona de salón/comedor de concepto abierto fluye a la perfección hacia una cocina de inspiración chef, creando un corazón luminoso y social para el hogar. Un aseo de invitados (PW.RM) está estratégicamente situado cerca de la entrada para mayor comodidad.
-
La Suite Primaria: El dormitorio principal es un verdadero santuario, con un vestidor y un lujoso cuarto de baño con accesorios de alta gama.
-
Áreas de huéspedes y servicios: Dos amplios dormitorios adicionales (Dormitorio 01 y 02) comparten un baño central bien equipado. Único en este diseño es el cuarto de servicio independiente con su propio baño privado y un cuarto de servicio dedicado para lavandería y almacenamiento.
-
La terraza: Una de las características más llamativas es el enorme balcón panorámico que rodea toda la unidad. Con acceso directo desde la sala de estar y los tres dormitorios, proporciona un estilo de vida interior-exterior sin fisuras y unas vistas impresionantes a través de ventanas de suelo a techo.
🎯 Una inversión ideal para cualquier comprador
-
Para familias: Esta distribución es el estándar de oro para la vida familiar en los EAU. La configuración de tres dormitorios proporciona privacidad individual a los niños, mientras que el cuarto de servicio permite tener ayuda interna. Su ubicación garantiza paz y tranquilidad, a pocos minutos de colegios internacionales y parques comunitarios.
-
Para turistas y residentes estacionales: La enorme terraza y la sensación de “estilo resort” lo convierten en una opción de primera categoría para alquileres de lujo a corto plazo. Su proximidad a los paseos marítimos y a las animadas cafeterías garantiza una experiencia vacacional de alto nivel.
-
Para inversores: Las unidades 3BR+Maid se encuentran entre los activos más líquidos del mercado de los EAU. Debido a la gran demanda por parte de familias de expatriados, los inversores pueden esperar fuertes rendimientos de alquiler (ROI) y una apreciación significativa del capital a medida que la comunidad de Parkway continúa madurando.
🌆 Infraestructuras y estilo de vida
Vivir en Parkway significa tener servicios de primera clase a la puerta de casa. Los residentes disfrutan de acceso a gimnasios de última generación, piscinas climatizadas y bonitos senderos ajardinados. El barrio está repleto de infraestructuras, como supermercados de primera calidad, tiendas boutique y excelentes conexiones de transporte, que facilitan los desplazamientos diarios a los centros de negocios de la ciudad.













