🏡 Exquisito dúplex de 2 dormitorios con piscina privada en Ocean House
Redefina su nivel de vida costera en Ocean House, una obra maestra de la arquitectura boutique situada en la emblemática Palm Jumeirah. Este sofisticado dúplex de dos plantas ofrece la intimidad de una villa privada combinada con los elevados servicios de una residencia de categoría mundial. Diseñada para quienes aprecian el lujo, esta propiedad se erige como símbolo de prestigio en el barrio más codiciado de Dubai.
📐 Diseño y principales ventajas
La residencia presenta una distribución magistralmente planificada que separa los vibrantes espacios sociales de las tranquilas estancias privadas:
-
Nivel inferior (entretenimiento y sala de estar): La planta baja está dedicada a la vida en el interior y al aire libre. Cuenta con una gran zona de estar y salón, un comedor formal y una cocina doble: una elegante cocina de exhibición para recibir a los invitados y una cocina de preparación independiente para la creación culinaria. El interior fluye sin esfuerzo hacia una enorme terraza, que alberga su piscina privada, una terraza para tomar el sol y una zona de comedor al aire libre.
-
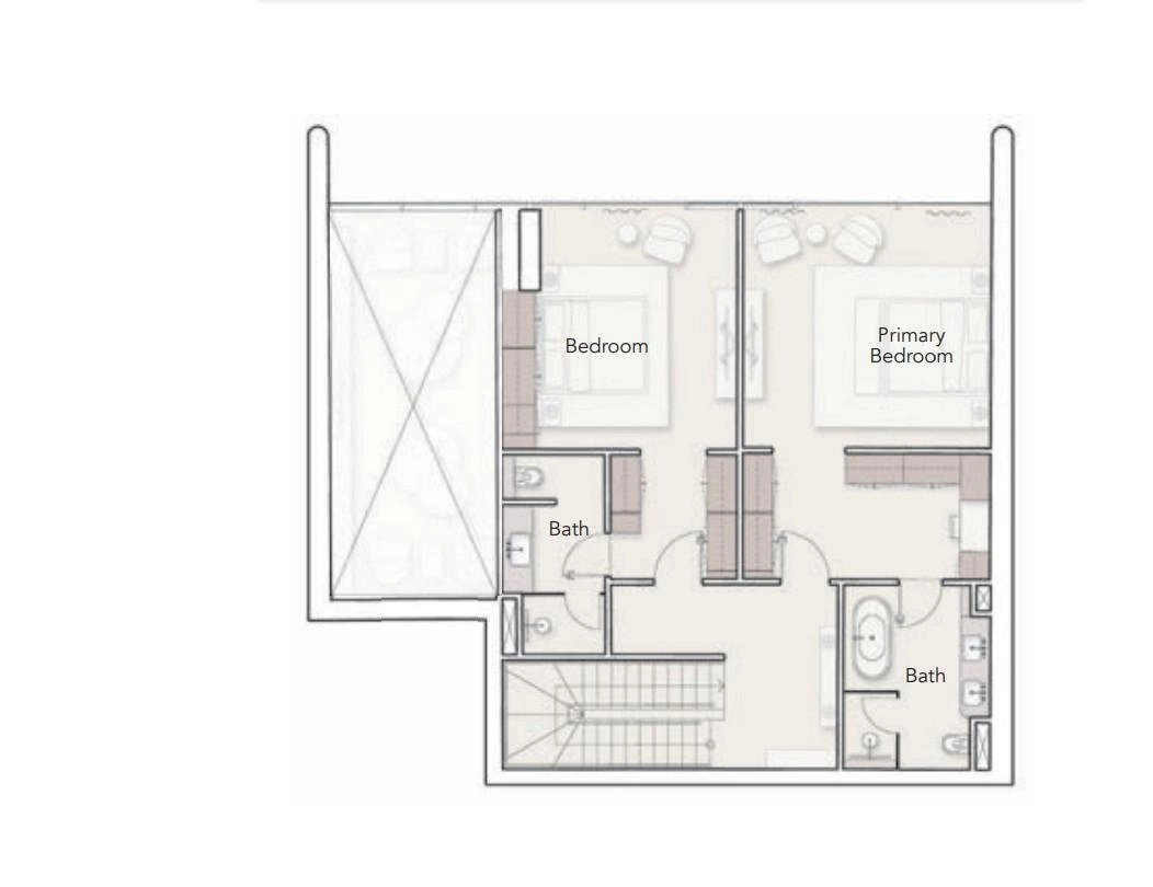
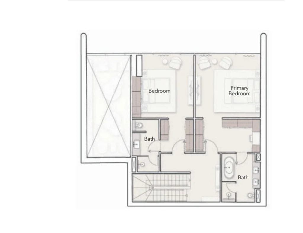
Nivel superior (El retiro privado): Una gran escalera conduce a los dormitorios. El dormitorio principal es un verdadero santuario, con un enorme vestidor y un cuarto de baño tipo spa con bañera independiente. El segundo dormitorio también cuenta con su propio cuarto de baño, garantizando la comodidad total para los huéspedes o miembros de la familia.
-
Utilidad y almacenamiento: El plano incluye un trastero, un lavadero y un aseo para invitados, lo que garantiza la funcionalidad de la vivienda y evita el desorden.
🎯 Para quién es esta propiedad
-
Familias con hijos: La clara separación de plantas ofrece la máxima privacidad. Con los dormitorios arriba y la zona de estar abajo, los niños pueden descansar tranquilamente mientras los padres se entretienen. La inclusión de un almacén y un lavadero proporciona el espacio práctico necesario para una familia en crecimiento.
-
Turistas y veraneantes exigentes: Como alquiler a corto plazo o casa de vacaciones, este dúplex es inmejorable. La piscina privada y el acceso directo a los clubes de playa y restaurantes de lujo de Palm lo convierten en una propiedad de “estilo de vida” muy demandada.
-
Inversores estratégicos: Palm Jumeirah sigue siendo el mercado inmobiliario más resistente de Dubai. El concepto de “villa vertical” -especialmente con piscina privada- es un activo poco común que ofrece altos rendimientos por alquiler y una importante revalorización del capital, ya que la demanda de lujo boutique de baja densidad sigue creciendo.
🏙️ Ubicación e infraestructura
Situado en la medialuna de Palm Jumeirah, el Ocean House le sitúa en el centro del lujo mundial. Usted está a pocos minutos de:
-
Vivir frente al mar: Acceso directo a playas vírgenes y al pintoresco paseo marítimo.
-
Servicios Premium: A pocos minutos del centro comercial Nakheel Mall, The Pointe y complejos de 5 estrellas como Atlantis The Royal.
-
Bienestar: El edificio ofrece un club de bienestar, un spa y un gimnasio exclusivos para residentes, que garantizan un estilo de vida holístico al alcance de la mano.













