🏠 Apartamento Elite de 2 dormitorios con piscina privada en Binghatti Vintage
Descubra el pináculo del lujo suburbano en Majan, Dubai. Baytique se enorgullece de presentar este excepcional apartamento de 2 dormitorios en Binghatti Vintage, una residencia que redefine el confort moderno. Esta propiedad es un hallazgo raro, que combina la vida interior espacioso con una amplia terraza que sirve como su propio oasis privado en el corazón de la ciudad.
📐 Disposición inteligente y servicios exclusivos
El apartamento presenta una sofisticada distribución de gran fachada, diseñada para que todas las habitaciones principales tengan acceso directo al exterior.
-
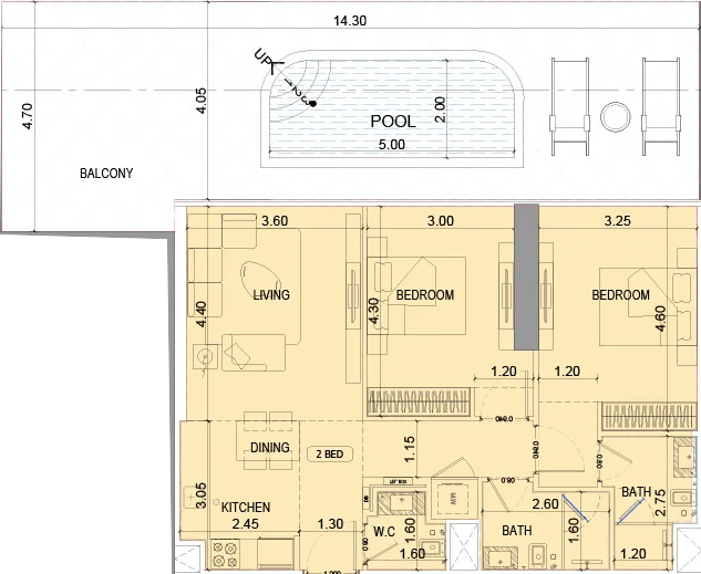
La terraza y la piscina privada: La joya de la corona de esta casa es la enorme terraza de 14,30 m de ancho que cuenta con su propia piscina privada de 5,00 m x 2,00 m. Esta zona es perfecta para comer al aire libre, tomar el sol en la terraza y relajarse.
-
Vivir la excelencia: Un espacioso salón de 4,40 x 3,60 m da paso a un comedor y una cocina de alta gama (2,45 x 3,05 m).
-
Aposentos privados: Ambos dormitorios son de gran tamaño (4,30 m x 3,00 m y 4,60 m x 3,25 m) y funcionan como suites independientes con sus propios cuartos de baño privados.
-
Comodidad para los huéspedes: Además de los dos cuartos de baño privados, la distribución incluye un aseo de invitados independiente (1,60 m x 1,60 m) cerca de la entrada, lo que garantiza la total privacidad de los residentes.
🎯 Por qué destaca esta propiedad
-
Para familias: Este es un verdadero santuario familiar. El diseño de dormitorios “divididos” garantiza la privacidad de los padres, mientras que la piscina privada ofrece una zona de juegos segura y exclusiva para los niños dentro de la comodidad del hogar. Majan es una comunidad tranquila situada cerca de colegios de primer nivel y parques verdes.
-
Para inversores: Las viviendas de gama alta con piscina privada se cuentan entre los activos más líquidos y rentables del mercado de alquiler de Dubai. Esta característica única de “piscina en el balcón” conlleva unos precios de alquiler diarios y mensuales mucho más elevados que los de las viviendas estándar.
-
Para los que buscan casa de vacaciones: La proximidad a grandes atracciones como Global Village e IMG Worlds of Adventure lo convierte en un objetivo privilegiado para turistas de corta estancia que buscan una experiencia de estancia de lujo.
📍 Ubicación privilegiada: Majan, Dubai
Situado en el sereno pero conectado barrio de Majan, Binghatti Vintage ofrece a los residentes el equilibrio perfecto entre tranquilidad y accesibilidad. Está a solo unos minutos de infraestructuras esenciales, como supermercados, cafeterías boutique y autopistas principales como Sheikh Mohammed Bin Zayed Road, que permiten desplazarse sin esfuerzo al centro de Dubái y al aeropuerto internacional.













