🌟 شقة من غرفتي نوم مع مسبح صغير في فيلا ديل برونيلو
استمتع بحياة فاخرة على شاطئ البحر في هذه الشقة الأنيقة المكونة من غرفتي نوم والواقعة في مجمع فيلا ديل برونيلو الفاخر في جزر دبي، دبي.
-
النوع: شقة من غرفتي نوم
-
المساحة الإجمالية: (تقريبًا) بما في ذلك شرفة واسعة ومسبح خاص
تجمع هذه الإقامة بين الفخامة العصرية والهدوء الذي يتميز به نمط الحياة الساحلي، وتوفر الراحة والحصرية في آن واحد.
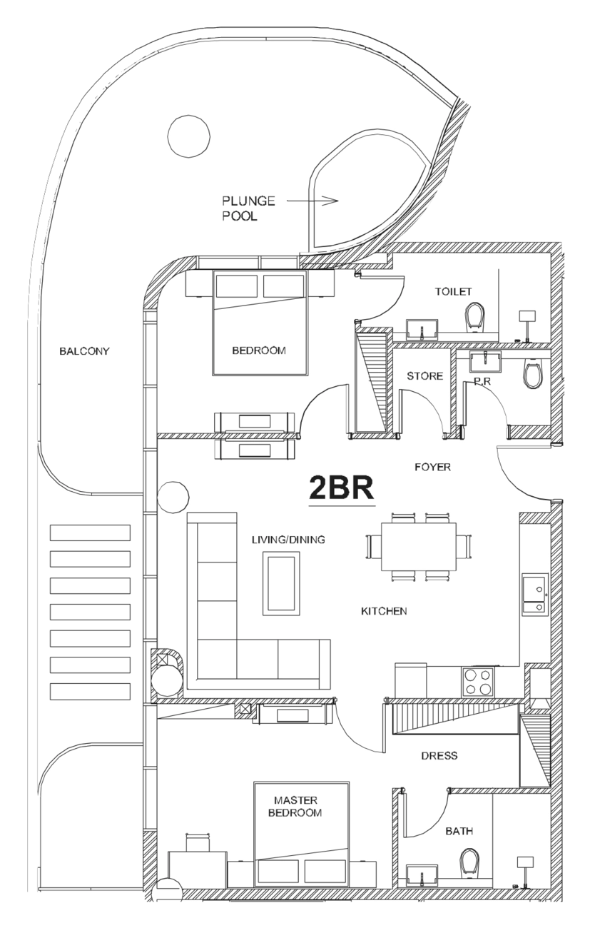
🏡 التصميم والميزات الرئيسية
تتميز الشقة بتصميمها العملي والوظيفي:
-
غرفتا نوم، بما في ذلك غرفة نوم رئيسية مع منطقة خاصة لتبديل الملابس وحمام داخلي
-
منطقة معيشة/طعام مفتوحة تتصل مباشرة بالمطبخ
-
مطبخ مجهز بالكامل، مثالي للاستضافة والراحة اليومية
-
مرحاض للضيوف، غرفة تخزين، وردهة مخصصة
-
شرفة كبيرة مع مناطق جلوس في الهواء الطلق
-
مسبح خاص، وهو مرفق نادر يعزز الخصوصية والاسترخاء
✨ المزايا: غرف نوم منفصلة لضمان الخصوصية، منطقة معيشة واسعة، إضاءة طبيعية ممتازة، ومساحة خارجية خاصة مثالية للاستمتاع بمناخ دبي الساحلي.
👨👩👧👦 مثالي لـ
-
العائلات: تصميم هادئ مع غرف نوم منفصلة، وبيئة مجتمعية آمنة، وقرب من المدارس والمتنزهات.
-
السياح وأصحاب منازل العطلات: جاذبية إيجارية عالية بفضل المسبح الخاص وقربه من الشاطئ وإمكانية الوصول إلى المقاهي والمتنزهات والمرافق الترفيهية.
-
المستثمرون: إمكانات عائد استثمار قوية في جزر دبي — منطقة سريعة النمو مع طلب متزايد وارتفاع مستمر في الأسعار وسيولة ممتازة.
🌆 الحي والبنية التحتية
تتمتع الشقة بموقع متميز مع مرافق رائعة في الجوار:
🛍️ سوبر ماركت ومحلات بوتيك ومركز تجاري ضخم قيد الإنشاء
☕ المقاهي والمطاعم والمرافق الصحية على شاطئ البحر
🚗 طرق مواصلات مريحة ووسائل نقل سهلة الوصول
🌊 على بعد خطوات من الشواطئ النقية والمتنزهات المطلة على البحر
توفر هذه الشقة المكونة من غرفتي نوم في فيلا ديل برونيلو مزيجاً استثنائياً من الفخامة والراحة والجاذبية الاستثمارية — وهي الخيار المثالي لمن يبحثون عن نمط حياة راقي في أحد أكثر المجتمعات الساحلية الجديدة الواعدة في دبي.













