🏡 شقة تنفيذية من غرفتي نوم في Do Hotels & Residences
اكتشف تجربة معيشية لا مثيل لها في قلب دبي في Do Hotels & Residences. تجمع هذه الشقة الفاخرة المكونة من غرفتي نوم بين الخدمة الراقية التي يقدمها الفندق الفاخر والراحة والخصوصية التي يوفرها المنزل الدائم. تتميز هذه الشقة بجماليات معمارية حديثة وتصميم داخلي مصمم لتوفير حياة سلسة، وهي خيار متميز لأولئك الذين يبحثون عن الفخامة في أكثر مدن الإمارات العربية المتحدة ديناميكية.
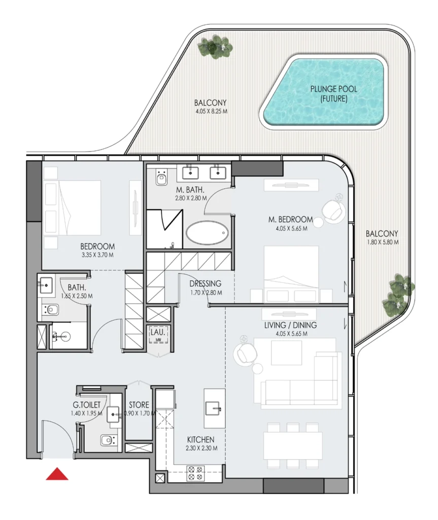
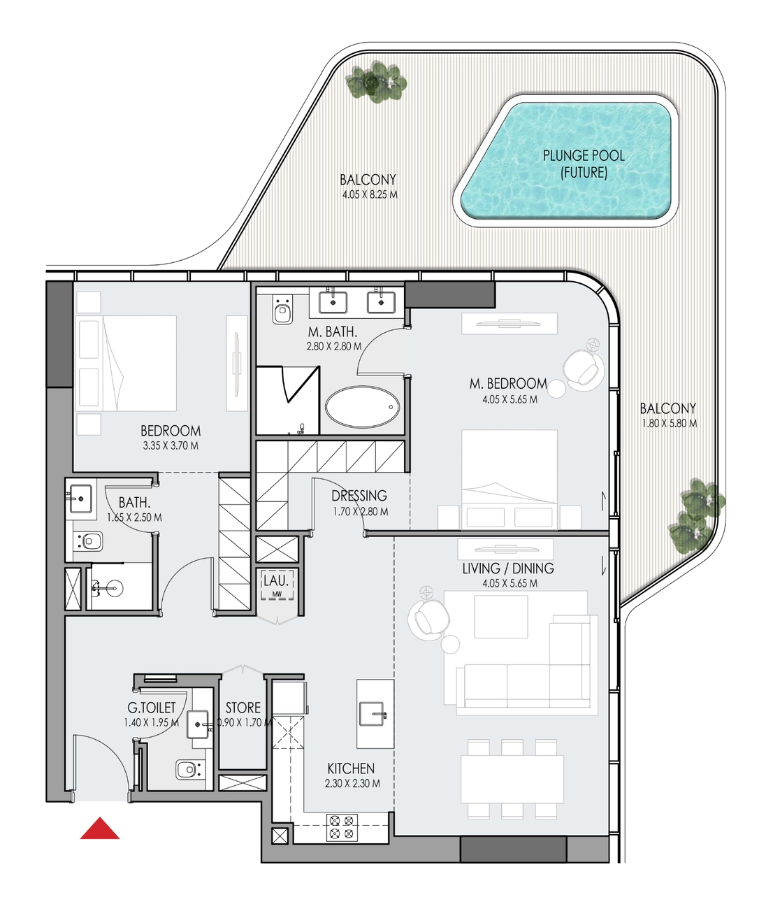
📐 المزايا والمرافق الرئيسية
-
الخصوصية والراحة: تُعد غرفة النوم الرئيسية ملاذاً خاصاً مع منطقة مخصصة لتبديل الملابس وحمام رئيسي فاخر مزود بحوضين مزدوجين وحوض استحمام.
-
مناظر بانورامية: تحيط جدران زجاجية منحنية من الأرض إلى السقف بمنطقة المعيشة وغرف النوم، مما يغمر المنزل بالضوء الطبيعي ويوفر وصولاً سلساً إلى الشرفة الضخمة.
-
جاهز لاستقبال الضيوف: بالإضافة إلى حمامين كاملين، تحتوي الشقة على مرحاض منفصل للضيوف يقع في مكان مناسب بالقرب من المدخل.
🎯 خيار استراتيجي لكل مشترٍ
-
للعائلات: يوفر تصميم غرف النوم المنفصلة الخصوصية الأساسية، بينما يوفر التراس الكبير منطقة لعب خارجية آمنة وخاصة للأطفال. قربه من المدارس المتميزة والمناطق السكنية الهادئة يجعله خيارًا عائليًا من الدرجة الأولى.
-
للمستثمرين: تحقق المساكن ذات العلامات التجارية مثل Do Hotels & Residences عوائد إيجارية أعلى باستمرار وتظهر ارتفاعًا قويًا في قيمة رأس المال. تزيد الإضافة الفريدة المتمثلة في حوض سباحة خاص من جاذبية العقار في سوق الإيجارات قصيرة الأجل.
-
للباحثين عن أسلوب حياة: مناسب تمامًا لأولئك الذين يستمتعون براحة “القفل والمغادرة” التي توفرها الإقامة في الفنادق. يقع السكان على بعد خطوات قليلة من المطاعم العالمية المستوى والمتاجر الفاخرة والمتنزهات الخلابة على الواجهة البحرية.
🏗️ البنية التحتية والاتصال
يقع في منطقة راقية في دبي، ويستفيد السكان من بنية تحتية استثنائية، بما في ذلك شبكات نقل سريعة وحي نابض بالحياة مليء بالمحلات والمقاهي. سواء كنت تتنقل للعمل أو تستمتع بعطلة نهاية الأسبوع على الساحل، فكل ما تحتاجه في متناول يدك.













