🏠 1 غرفة نوم واحدة متطورة شقة مع جناح مرافق مخصص للمرافق في باركواي
اكتشف أسلوب حياة حضري راقٍ في هذه الشقة المصممة بعناية والمكونة من غرفة نوم واحدة والواقعة في قلب باركواي، أحد أكثر المجمعات السكنية الخضراء رواجاً في الإمارات العربية المتحدة. يعد هذا السكن خياراً متميزاً لأولئك الذين يقدرون الانسجام التنظيمي والجماليات العصرية. تم تصميم التصميم خصيصاً للفصل بين المناطق الاجتماعية ومناطق الخدمات، مما يوفر مستوى من الرفاهية الوظيفية نادراً ما نراه في تكوينات غرفة النوم الواحدة.
📐 تخطيط مريح ومزايا رئيسية
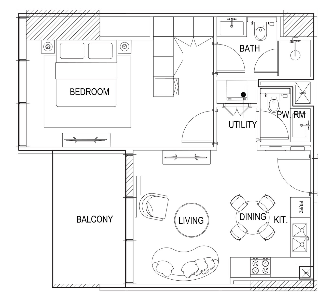
يُعد مخطط الطابق الأرضي درساً رئيسياً في الكفاءة المكانية، حيث يوفر ميزات راقية ترتقي بالحياة اليومية:
-
المركز الاجتماعي: منطقة مشرقة ومتجددة الهواء للمعيشة وتناول الطعام، وهي بمثابة قلب المنزل، ويكتمل ذلك بالمطبخ العصري الانسيابي (KIT).
-
راحة محسّنة للضيوف: على عكس الوحدات القياسية المكونة من غرفة نوم واحدة، تشتمل هذه الشقة على غرفة مسحوق منفصلة (PW. RM)، مما يضمن الخصوصية التامة للحمام الرئيسي.
-
منطقة الخدمة المخصصة: تم دمج غرفة المرافق النادرة والقيمة للغاية في التصميم، مما يوفر مساحة أساسية لغسيل الملابس والتخزين للحفاظ على مناطق المعيشة خالية من الفوضى.
-
ملاذ خاص: تتميز غرفة النوم الفسيحة بنوافذ كبيرة وسهولة الوصول إلى الحمّام الكامل، مما يجعلها ملاذاً منعزلاً.
-
الحياة في الهواء الطلق: شرفة كبيرة الحجم توسع مساحة المعيشة في الهواء الطلق، وهي مثالية للاستمتاع بمناظر المناظر الطبيعية الخلابة في المجتمع.
🎯 خيار استراتيجي لكل مشترٍ
-
للمستثمرين: تُعد الوحدات المكونة من غرفة نوم واحدة مع مراحيض ثانوية للضيوف وغرف مرافق مخصصة أصولاً عالية السيولة في الإمارات العربية المتحدة. تزيد هذه الميزات من الطلب على الإيجار بشكل كبير وتسمح بتسعير ممتاز، مما يضمن عائد استثمار قوي وزيادة ممتازة في رأس المال.
-
للأزواج والمهنيين: يوفر أسلوب حياة “باركواي” التوازن المثالي بين العمل والعافية. كما أن غرفة النوم المعزولة ومرافق الضيوف المنفصلة تجعلها مثالية لاستضافة الأصدقاء أو العمل من المنزل في بيئة هادئة ومنظمة.
-
للسياح: يشير موقعه داخل مشروع “باركواي” إلى قربه من المساحات الخضراء الشاسعة والمراكز الترفيهية. كما أن وجود شرفة ووسائل راحة عصرية تجعله خياراً جذاباً للإيجارات قصيرة الأجل الراقية.
★ نمط حياة المجتمع والبنية التحتية
العيش في باركواي يضعك في قلب مجتمع صحي ونابض بالحياة. يستفيد المقيمون من:
-
المساحات الخضراء: سهولة الوصول الفوري إلى المتنزهات الواسعة ومسارات الركض والمتنزهات ذات المناظر الطبيعية الخلابة.
-
الراحة: على بُعد مسافة قصيرة سيراً على الأقدام من محلات السوبر ماركت الفاخرة ومتاجر التجزئة البوتيك ومجموعة متنوعة من المقاهي المحلية.
-
الاتصال: يضمن لك الموقع الاستراتيجي بالقرب من خطوط النقل الرئيسية الوصول السريع والسهل إلى مراكز الأعمال في المدينة ومناطق الجذب السياحي على الواجهة البحرية.













